Продается 2-комнатная квартира, 60 м²
Москва, Юго-Восточный административный округ, Волочаевская улица, 3Б на карте
Площадь Ильича, 10 мин. пешком
1840466
2
комнат
15/16
этаж
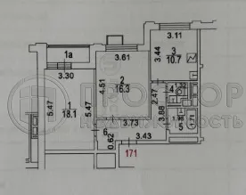
60 м²
площадь
36 м²
жилая
11 м²
кухня

Разгонов
Сергей Андреевич
Офис «Павелецкий»
Давайте я перезвоню вам через 2 минуты и отвечу на любые вопросы об этой недвижимости?
Тип сделки
Продажа
Тип продажи
Свободная
Новостройка
Нет
Год постройки
2024
Тип здания
Кирпично-монолитный
Планировка
Раздельные комнаты
Ремонт
Евро
Высота потолков, м
2.7 м
Лифт
Нет
Балкон/Лоджия
1 лоджия
Отопление
Центральное
Санузел
Раздельный
Раздельных санузлов
1
Возможна ипотека
Да
Дополнительная информация:
Код объекта: 1840466. ЖК «Танковый» — новый дом в районе Лефортово города Москвы, который стал комфортным местом для жизни. Комплекс комфорт-класса представляет собой монолитно-каркасное здание высотой до 16 этажей. В ЖК «Танковый» предусмотрены разнообразные планировки. Особое внимание уделено доступности: пять квартир специально адаптированы для людей с нарушениями опорно-двигательного аппарата и будут расположены на втором, третьем и четвёртом этажах. Транспортная доступность Жизнь в ЖК «Танковый» обеспечивает удобство передвижения по городу. До станции метро «Площадь Ильича» можно дойти пешком за 12...15 минут (1,5 км), а до станции «Римская» — за 18 минуту (1,7 км). Для автовладельцев дорога до центра города занимает около 13 минут (4,2 км). В радиусе 2–4 км от района проходят важные транспортные артерии: шоссе Энтузиастов, ТТК, Садовое кольцо, Москворецкая набережная. МКАД находится примерно в 12 км от комплекса. Инфраструктура На прилегающей территории ЖК «Танковый» расположены детские игровые и спортивные площадки, проведено озеленение. Рядом с домом предусмотрена гостевая парковка на 81 машиноместо. В шаговой доступности находятся школы, детские сады, медицинские учреждения, торговые центры и супермаркеты. Инфраструктура продолжает развиваться, пополняясь новыми культурными и общественными объектами. Архитектура Архитектура ЖК «Танковый» привлекает внимание современным дизайном. Фасад сложной структуры облицован белыми фиброцементными панелями со вставками из контрастных тёмно-серых металлических кассет между окнами. По периметру дома расположены ниши, а на фасадах запланированы металлические декоративные корзины под наружные блоки кондиционеров. Все входные группы расположены на уровне земли, что обеспечивает удобство доступа. Вестибюль включает комнату консьержа, колясочную, зону почтовых ящиков и лифтовой холл. В каждой секции установлено по два пассажирских лифта. О застройщике Застройщиком ЖК «Танковый» является АО «Ганза Девелопмент». Эта компания специализируется на строительстве многофункциональных комплексов, жилой и коммерческой недвижимости в Москве и Московской области. Документы готовы к сделки. Один собственник. Без долгов и обременений.
Спецпредложения:

3-комнатная квартира, 71.8 м²
Лухмановская
Московская область, городской округ Люберцы, Люберцы, улица Льва Толстого, 2

1-комнатная квартира, 35 м²
Академическая
Москва, Юго-Западный административный округ, улица Винокурова, 12к4

1-комнатная квартира, 31.2 м²
Новокосино
Московская область, городской округ Балашиха, Балашиха, микрорайон Балашиха-1, шоссе Энтузиастов, 15

1-комнатная квартира, 30.1 м²
Московская область, Одинцовский городской округ, посёлок городского типа Большие Вязёмы, посёлок Школьный, посёлок Школьный, 2

3-комнатная квартира, 88.7 м²
Аэропорт Внуково
Московская область, Наро-Фоминский городской округ, Апрелевка, Берёзовая аллея, 5к1

3-комнатная квартира, 64 м²
Лобня
Московская область, городской округ Лобня, Лобня, микрорайон Красная Поляна, улица 9 квартал, 6

2-комнатная квартира, 45.1 м²
Новокосино
Московская область, городской округ Реутов, Реутов, 4-й микрорайон, проспект Мира, 10

2-комнатная квартира, 48.6 м²
Ховрино
Московская область, городской округ Химки, Химки, Ленинградская улица, 19

2-комнатная квартира, 74.4 м²
Жулебино
Московская область, городской округ Люберцы, Люберцы, жилой комплекс Твин Хаус, улица Кирова, 11

3-комнатная квартира, 71 м²
Медведково
Московская область, городской округ Королёв, Королёв, микрорайон Новые Подлипки, улица 50-летия ВЛКСМ, 4В

3-комнатная квартира, 65 м²
Медведково
Московская область, городской округ Королёв, Королёв, улица Горького, 16к4

2-комнатная квартира, 50.15 м²
Лухмановская
Московская область, городской округ Люберцы, Люберцы, 3-я Красногорская улица, 34

2-комнатная квартира, 47 м²
Ярославская область, Ростовский муниципальный округ, посёлок Лесной, Новая улица, 29

1-комнатная квартира, 37.8 м²
Хорошево
Москва, Северо-Западный административный округ, улица Демьяна Бедного, 2к5

2-комнатная квартира, 52 м²
Московская область, Зеленоград, Зеленоградский административный округ, 16-й микрорайон, к1619

2-комнатная квартира, 51 м²
Давыдково
Москва, Западный административный округ, Вяземская улица, 5

Студия, 28 м²
ЗИЛ
Москва, Южный административный округ, жилой комплекс Шагал

2-комнатная квартира, 53.2 м²
Котельники
Московская область, городской округ Котельники, Котельники, микрорайон Южный, микрорайон Южный, 11

1-комнатная квартира, 30 м²
ВДНХ
Москва, Северо-Восточный административный округ, улица Бориса Галушкина, 20

1-комнатная квартира, 47.2 м²
Новокосино
Московская область, городской округ Балашиха, Балашиха, микрорайон Балашиха-6, проспект Ленина, 76

Студия, 27 м²
Мякинино
Москва, Западный административный округ, 5-я Мякининская улица, 20
