Продается -комнатная квартира, 17.6 м²
Москва, Юго-Западный административный округ, Профсоюзная улица,69 на карте
Чкаловская, 13 мин. пешком
4662121584
комнат
3/15
этаж
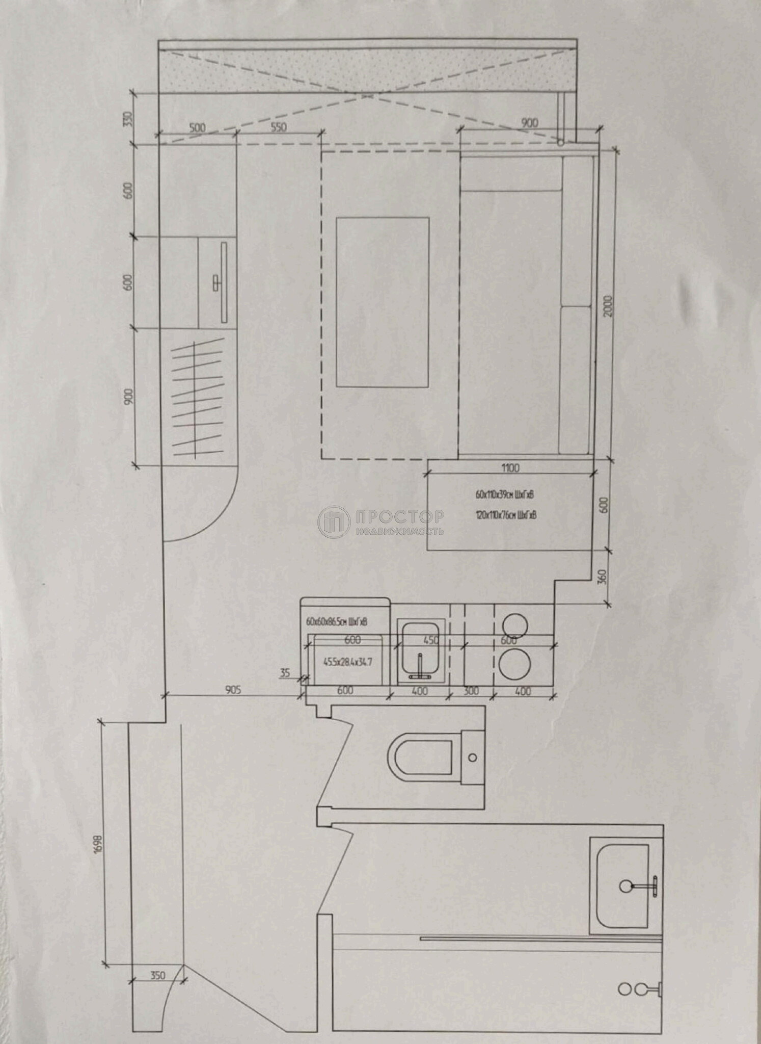
17.6 м²
площадь
12 м²
жилая
3 м²
кухня

Фомин
Михаил Борисович
Офис «Павелецкий»
Давайте я перезвоню вам через 2 минуты и отвечу на любые вопросы об этой недвижимости?
Тип сделки
Продажа
Тип продажи
Свободная
Новостройка
Нет
Год постройки
1973
Тип здания
Панельный
Планировка
Смежные комнаты
Ремонт
Косметический
Высота потолков, м
2.6 м
Лифт
Нет
Санузел
Совмещенный
Вид из окон
Во двор
Возможна ипотека
Нет
Дополнительная информация:
Код объекта: 1828400.
Отличная, готовая к проживанию квартира-студия 17,6 кв. м на Профсоюзной улице, 69.
Отличное предложение для студентов, молодых специалистов, инвесторов в Москве!
Квартира находится на 3 этаже 15-этажного дома. Большое окно выходит во двор - светло, нет шума.
10 мин пешком от метро Калужская или Беляево. Традиционно студенческая локация, где удобно недорого поесть, отдохнуть и быстро добраться до огромного числа вузов.
Это квартира (не апартаменты), хорошая и при этом недорогая УК (487 руб. в месяц) отвечает за чистоту, бдительная охрана - следит и за посетителями и за нарушителями спокойствия.
Рассмотрим ваши варианты.
**Рассмотрим ваши варианты, включая обмен!
Что еще делает нас особенными?
**Агентство недвижимости Простор**
Поможем одобрить ипотеку или снизить ставку.
Член Гильдии Риэлторов Москвы, профессиональная ответственность застрахована на 20 млн руб. Ваши инвестиции под надежной защитой!
**Звоните прямо сейчас, чтобы записаться на просмотр!
Спецпредложения:

1-комнатная квартира, 35 м²
Академическая
Москва, Юго-Западный административный округ, улица Винокурова, 12к4

2-комнатная квартира, 47 м²
Ярославская область, Ростовский муниципальный округ, посёлок Лесной, Новая улица, 29

1-комнатная квартира, 36 м²
Чкаловская
Москва, Северо-Западный административный округ, Волоколамское шоссе,41к1

2-комнатная квартира, 74.4 м²
Жулебино
Московская область, городской округ Люберцы, Люберцы, жилой комплекс Твин Хаус, улица Кирова, 11

2-комнатная квартира, 53.2 м²
Котельники
Московская область, городской округ Котельники, Котельники, микрорайон Южный, микрорайон Южный, 11

1-комнатная квартира, 30.1 м²
Московская область, Одинцовский городской округ, посёлок городского типа Большие Вязёмы, посёлок Школьный, посёлок Школьный, 2

3-комнатная квартира, 115.5 м²
Чкаловская
Москва, Центральный административный округ, улица Гиляровского,62

1-комнатная квартира, 31.2 м²
Новокосино
Московская область, городской округ Балашиха, Балашиха, микрорайон Балашиха-1, шоссе Энтузиастов, 15

1-комнатная квартира, 43 м²
Чкаловская
Московская область, городской округ Щёлково, Щёлково, микрорайон Заречный, Пролетарский проспект,4к4

3-комнатная квартира, 68.2 м²
Чкаловская
Московская область, городской округ Котельники, Котельники, микрорайон Ковровый, Новая улица,17Б

4-комнатная квартира, 98.1 м²
Чкаловская
Москва, Юго-Восточный административный округ, 3-й Крутицкий переулок,13

2-комнатная квартира, 51 м²
Давыдково
Москва, Западный административный округ, Вяземская улица, 5

2-комнатная квартира, 48.6 м²
Ховрино
Московская область, городской округ Химки, Химки, Ленинградская улица, 19

2-комнатная квартира, 39 м²
Чкаловская
Москва, Южный административный округ, Бирюлёвская улица,6

1-комнатная квартира, 30 м²
ВДНХ
Москва, Северо-Восточный административный округ, улица Бориса Галушкина, 20

3-комнатная квартира, 64 м²
Лобня
Московская область, городской округ Лобня, Лобня, микрорайон Красная Поляна, улица 9 квартал, 6

1-комнатная квартира, 47.2 м²
Новокосино
Московская область, городской округ Балашиха, Балашиха, микрорайон Балашиха-6, проспект Ленина, 76

3-комнатная квартира, 88.7 м²
Аэропорт Внуково
Московская область, Наро-Фоминский городской округ, Апрелевка, Берёзовая аллея, 5к1

1-комнатная квартира, 33 м²
Московская область, городской округ Жуковский, Жуковский, 34-й квартал, улица Чкалова,7к2

1-комнатная квартира, 29.5 м²
Чкаловская
Московская область, городской округ Люберцы, дачный посёлок Красково, жилой комплекс Новокрасково, Егорьевское шоссе,1к1

3-комнатная квартира, 92.6 м²
Чкаловская
Москва, Южный административный округ, Дербеневская набережная,1/2

3-комнатная квартира, 71 м²
Медведково
Московская область, городской округ Королёв, Королёв, микрорайон Новые Подлипки, улица 50-летия ВЛКСМ, 4В

3-комнатная квартира, 65 м²
Медведково
Московская область, городской округ Королёв, Королёв, улица Горького, 16к4

Студия, 27 м²
Мякинино
Москва, Западный административный округ, 5-я Мякининская улица, 20

1-комнатная квартира, 37.8 м²
Хорошево
Москва, Северо-Западный административный округ, улица Демьяна Бедного, 2к5

5-комнатная квартира, 138.6 м²
Чкаловская
Москва, Центральный административный округ, улица Крымский Вал,4

-комнатная квартира, 26.11 м²
Чкаловская
Москва, Северный административный округ,

2-комнатная квартира, 51.15 м²
Чкаловская
Московская область, городской округ Красногорск, жилой комплекс Спутник, к15

2-комнатная квартира, 50.15 м²
Лухмановская
Московская область, городской округ Люберцы, Люберцы, 3-я Красногорская улица, 34

-комнатная квартира, 23 м²
Чкаловская
Московская область, Ленинский городской округ, рабочий посёлок Лопатино, жилой комплекс Государев Дом, Солнечный бульвар,2

3-комнатная квартира, 71.8 м²
Лухмановская
Московская область, городской округ Люберцы, Люберцы, улица Льва Толстого, 2

3-комнатная квартира, 72.1 м²
Чкаловская
Московская область, городской округ Мытищи, Мытищи, Ядреево – 17-й микрорайон, улица Колпакова,42к3

2-комнатная квартира, 45.1 м²
Новокосино
Московская область, городской округ Реутов, Реутов, 4-й микрорайон, проспект Мира, 10

5-комнатная квартира, 118.8 м²
Чкаловская
Москва, Центральный административный округ, Пушкарёв переулок,6

Студия, 28 м²
ЗИЛ
Москва, Южный административный округ, жилой комплекс Шагал

1-комнатная квартира, 34.6 м²
Чкаловская
Москва, Юго-Западный административный округ, улица Введенского,30к2

2-комнатная квартира, 52 м²
Московская область, Зеленоград, Зеленоградский административный округ, 16-й микрорайон, к1619
