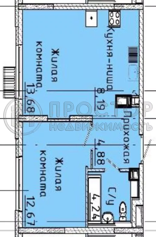
Продается 2-комнатная квартира, 43.66 м²
Квартира снята с продажи
ПодробнееМосква, Северный административный округ, жилой комплекс Молжаниново, к1 на карте
Пятницкое шоссе, 14 мин. на транспорте
943793
2
комнат
4/17
этаж
43.66 м²
площадь
26.35 м²
жилая
8.19 м²
кухня

Чернига
Ирина Юрьевна
Офис «Красносельский»
Давайте я перезвоню вам через 2 минуты и отвечу на любые вопросы об этой недвижимости?
Тип сделки
Продажа
Тип продажи
Свободная
Продажа по договору
Уступки
Новостройка
Да
Год постройки
2024
Состояние строительства
Строится
Тип здания
Кирпично-монолитный
Планировка
Раздельные комнаты
Ремонт
Чистовая в новостройке
Лифт
Да
Отопление
Центральное
Санузел
Совмещенный
Совмещенных санузлов
1
Возможна ипотека
Да
Дополнительная информация:
Код объекта: 943793. Продается уютная 2-комнатная квартира 43,66 кв.м на 4 этаже в ЖК комфорт класса “Молжаниново” с Московской регистрацией в 5 минутах ходьбы от МЦД-3 Новоподрезково! Это идеальное место для комфортной жизни! Продажа по переуступке, срок сдачи дома 30.11.2024 года Квартира сдается с чистовой отделкой, что позволит Вам сэкономить время и средства на ремонт. Придомовая территория ЖК “Молжаниново” оформлена в концепции “двор-сад”. Это значит, что здесь будет уютно и спокойно, ведь автомобили будут находиться на специально отведенных для них местах. Для детей предусмотрены разнообразные игровые площадки, а для взрослых – зоны отдыха, воркаут и многое другое. Благоустроенная набережная с прогулочными бульварами, велосипедными и беговыми дорожками станет любимым местом для отдыха всех жителей комплекса. Проект предусматривает строительство 8 детских садов, 4 школ и коммерческих помещений на первых этажах зданий. Содействие в получении льготной ипотеки без первоначального взноса. Рассмотрим вариант обмена с доплатой и без. Юридическая экспертиза объекта, проведение безопасной сделки, срочный выкуп Вашей квартиры за один день! Звоните! Срок сдачи 2024 г.

Квартира снята с продажи
Если вы хотите продать квартиру в Москве и Московской области или купить квартиру в Москве и Московской области - обращайтесь к нам!
Мы всегда поможем!
Спецпредложения:

3-комнатная квартира, 72.1 м²
Медведково
Московская область, городской округ Мытищи, Мытищи, Ядреево – 17-й микрорайон, улица Колпакова,42к3

1-комнатная квартира, 30.1 м²
Московская область, Одинцовский городской округ, посёлок городского типа Большие Вязёмы, посёлок Школьный, посёлок Школьный, 2

2-комнатная квартира, 48.6 м²
Ховрино
Московская область, городской округ Химки, Химки, Ленинградская улица, 19

1-комнатная квартира, 33 м²
Московская область, городской округ Жуковский, Жуковский, 34-й квартал, улица Чкалова,7к2

2-комнатная квартира, 51 м²
Давыдково
Москва, Западный административный округ, Вяземская улица, 5

2-комнатная квартира, 74.4 м²
Жулебино
Московская область, городской округ Люберцы, Люберцы, жилой комплекс Твин Хаус, улица Кирова, 11

3-комнатная квартира, 68.2 м²
Котельники
Московская область, городской округ Котельники, Котельники, микрорайон Ковровый, Новая улица,17Б

1-комнатная квартира, 36 м²
Щукинская
Москва, Северо-Западный административный округ, Волоколамское шоссе,41к1

5-комнатная квартира, 118.8 м²
Трубная
Москва, Центральный административный округ, Пушкарёв переулок,6

5-комнатная квартира, 138.6 м²
Октябрьская
Москва, Центральный административный округ, улица Крымский Вал,4

1-комнатная квартира, 34.6 м²
Беляево
Москва, Юго-Западный административный округ, улица Введенского,30к2

Студия, 27 м²
Мякинино
Москва, Западный административный округ, 5-я Мякининская улица, 20

1-комнатная квартира, 37.8 м²
Хорошево
Москва, Северо-Западный административный округ, улица Демьяна Бедного, 2к5

1-комнатная квартира, 29.5 м²
Некрасовка
Московская область, городской округ Люберцы, дачный посёлок Красково, жилой комплекс Новокрасково, Егорьевское шоссе,1к1

3-комнатная квартира, 92.6 м²
Крестьянская застава
Москва, Южный административный округ, Дербеневская набережная,1/2

3-комнатная квартира, 115.5 м²
Рижская
Москва, Центральный административный округ, улица Гиляровского,62

3-комнатная квартира, 64 м²
Лобня
Московская область, городской округ Лобня, Лобня, микрорайон Красная Поляна, улица 9 квартал, 6

1-комнатная квартира, 47.2 м²
Новокосино
Московская область, городской округ Балашиха, Балашиха, микрорайон Балашиха-6, проспект Ленина, 76

1-комнатная квартира, 43 м²
Щелковская
Московская область, городской округ Щёлково, Щёлково, микрорайон Заречный, Пролетарский проспект,4к4

3-комнатная квартира, 88.7 м²
Аэропорт Внуково
Московская область, Наро-Фоминский городской округ, Апрелевка, Берёзовая аллея, 5к1

3-комнатная квартира, 71 м²
Медведково
Московская область, городской округ Королёв, Королёв, микрорайон Новые Подлипки, улица 50-летия ВЛКСМ, 4В

2-комнатная квартира, 45.1 м²
Новокосино
Московская область, городской округ Реутов, Реутов, 4-й микрорайон, проспект Мира, 10

2-комнатная квартира, 50.15 м²
Лухмановская
Московская область, городской округ Люберцы, Люберцы, 3-я Красногорская улица, 34

1-комнатная квартира, 35 м²
Академическая
Москва, Юго-Западный административный округ, улица Винокурова, 12к4

1-комнатная квартира, 30 м²
ВДНХ
Москва, Северо-Восточный административный округ, улица Бориса Галушкина, 20

2-комнатная квартира, 51.15 м²
Строгино
Московская область, городской округ Красногорск, жилой комплекс Спутник, к15

2-комнатная квартира, 39 м²
Царицыно
Москва, Южный административный округ, Бирюлёвская улица,6

3-комнатная квартира, 71.8 м²
Лухмановская
Московская область, городской округ Люберцы, Люберцы, улица Льва Толстого, 2

2-комнатная квартира, 47 м²
Ярославская область, Ростовский муниципальный округ, посёлок Лесной, Новая улица, 29

-комнатная квартира, 23 м²
Бульвар Дмитрия Донского
Московская область, Ленинский городской округ, рабочий посёлок Лопатино, жилой комплекс Государев Дом, Солнечный бульвар,2

-комнатная квартира, 26.11 м²
Селигерская
Москва, Северный административный округ,

3-комнатная квартира, 65 м²
Медведково
Московская область, городской округ Королёв, Королёв, улица Горького, 16к4

2-комнатная квартира, 52 м²
Московская область, Зеленоград, Зеленоградский административный округ, 16-й микрорайон, к1619

4-комнатная квартира, 98.1 м²
Крестьянская застава
Москва, Юго-Восточный административный округ, 3-й Крутицкий переулок,13

2-комнатная квартира, 53.2 м²
Котельники
Московская область, городской округ Котельники, Котельники, микрорайон Южный, микрорайон Южный, 11

1-комнатная квартира, 31.2 м²
Новокосино
Московская область, городской округ Балашиха, Балашиха, микрорайон Балашиха-1, шоссе Энтузиастов, 15

Студия, 28 м²
ЗИЛ
Москва, Южный административный округ, жилой комплекс Шагал
