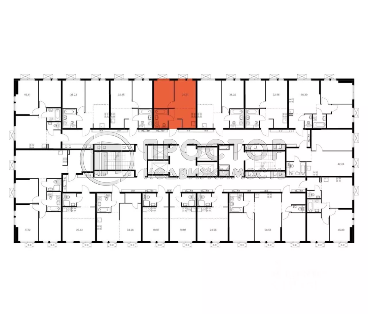
Продается 1-комнатная квартира, 32.51 м²
Тип сделки
Продажа
Тип продажи
Свободная
Продажа по договору
Уступки
Новостройка
Да
Название новостройки
ЖК «Железнодорожная, 39»
Год постройки
2024
Состояние строительства
Строится
Тип здания
Панельный
Планировка
Раздельные комнаты
Ремонт
Чистовая в новостройке
Лифт
Да
Отопление
Центральное
Санузел
Совмещенный
Совмещенных санузлов
1
Вид из окон
На улицу
Возможна ипотека
Да
Дополнительная информация:
Код объекта: 926555. Вашему вниманию предлагается 1-комнатная квартира с отделкой. Продажа по переуступке. В санузле предусмотрена отделка современной плиткой и сантехникой. Пластиковые окна, на полу в комнате ламинат, в коридоре плитка. О квартире: Общая площадь 32,51 кв.м. Жилая площадь 9,48 кв.м. Площадь кухни 16,03 кв.м. Документы: - 1 взрослый собственник - основание ДДУ Срок сдачи осень 2024, выдача ключей до 30.12.2024г. О комплексе: -детский сад, - начальная школа - несколько паркингов - собственный торговый центр. Инфраструктура рядом: - восемь детских садов, - восемь школ, поликлиники, В пешей доступности — ТЦ «Город», «Ашан» и «Леруа Мерлен». Парки: Перовский, усадьба Кусково и Кузьминки. Транспортная доступность: - 6 минут пешком до МЦД D4 (+10 минут до Курской) - 8 минут до МЦК - 8 минут до БКЛ Достроено соединение ТТК, СВХ и ЮВХ Подходит под семейную ипотеку! Срок сдачи 2024 г.

Квартира снята с продажи
Если вы хотите продать квартиру в Москве и Московской области или купить квартиру в Москве и Московской области - обращайтесь к нам!
Мы всегда поможем!
Спецпредложения:

2-комнатная квартира, 50.15 м²
Лухмановская
Московская область, городской округ Люберцы, Люберцы, 3-я Красногорская улица, 34

1-комнатная квартира, 47.2 м²
Новокосино
Московская область, городской округ Балашиха, Балашиха, микрорайон Балашиха-6, проспект Ленина, 76

1-комнатная квартира, 30.1 м²
Московская область, Одинцовский городской округ, посёлок городского типа Большие Вязёмы, посёлок Школьный, посёлок Школьный, 2

3-комнатная квартира, 71.8 м²
Лухмановская
Московская область, городской округ Люберцы, Люберцы, улица Льва Толстого, 2

1-комнатная квартира, 29.5 м²
Некрасовка
Московская область, городской округ Люберцы, дачный посёлок Красково, жилой комплекс Новокрасково, Егорьевское шоссе,1к1

3-комнатная квартира, 115.5 м²
Рижская
Москва, Центральный административный округ, улица Гиляровского,62

3-комнатная квартира, 71 м²
Медведково
Московская область, городской округ Королёв, Королёв, микрорайон Новые Подлипки, улица 50-летия ВЛКСМ, 4В

4-комнатная квартира, 98.1 м²
Крестьянская застава
Москва, Юго-Восточный административный округ, 3-й Крутицкий переулок,13

3-комнатная квартира, 65 м²
Медведково
Московская область, городской округ Королёв, Королёв, улица Горького, 16к4

2-комнатная квартира, 39 м²
Царицыно
Москва, Южный административный округ, Бирюлёвская улица,6

2-комнатная квартира, 47 м²
Ярославская область, Ростовский муниципальный округ, посёлок Лесной, Новая улица, 29

Студия, 28 м²
ЗИЛ
Москва, Южный административный округ, жилой комплекс Шагал

-комнатная квартира, 23 м²
Бульвар Дмитрия Донского
Московская область, Ленинский городской округ, рабочий посёлок Лопатино, жилой комплекс Государев Дом, Солнечный бульвар,2

1-комнатная квартира, 33 м²
Московская область, городской округ Жуковский, Жуковский, 34-й квартал, улица Чкалова,7к2

3-комнатная квартира, 88.7 м²
Аэропорт Внуково
Московская область, Наро-Фоминский городской округ, Апрелевка, Берёзовая аллея, 5к1

2-комнатная квартира, 51 м²
Давыдково
Москва, Западный административный округ, Вяземская улица, 5

3-комнатная квартира, 68.2 м²
Котельники
Московская область, городской округ Котельники, Котельники, микрорайон Ковровый, Новая улица,17Б

1-комнатная квартира, 31.2 м²
Новокосино
Московская область, городской округ Балашиха, Балашиха, микрорайон Балашиха-1, шоссе Энтузиастов, 15

Студия, 27 м²
Мякинино
Москва, Западный административный округ, 5-я Мякининская улица, 20

2-комнатная квартира, 52 м²
Московская область, Зеленоград, Зеленоградский административный округ, 16-й микрорайон, к1619

1-комнатная квартира, 36 м²
Щукинская
Москва, Северо-Западный административный округ, Волоколамское шоссе,41к1

2-комнатная квартира, 74.4 м²
Жулебино
Московская область, городской округ Люберцы, Люберцы, жилой комплекс Твин Хаус, улица Кирова, 11

2-комнатная квартира, 51.15 м²
Строгино
Московская область, городской округ Красногорск, жилой комплекс Спутник, к15

3-комнатная квартира, 64 м²
Лобня
Московская область, городской округ Лобня, Лобня, микрорайон Красная Поляна, улица 9 квартал, 6

5-комнатная квартира, 118.8 м²
Трубная
Москва, Центральный административный округ, Пушкарёв переулок,6

1-комнатная квартира, 34.6 м²
Беляево
Москва, Юго-Западный административный округ, улица Введенского,30к2

2-комнатная квартира, 45.1 м²
Новокосино
Московская область, городской округ Реутов, Реутов, 4-й микрорайон, проспект Мира, 10

5-комнатная квартира, 138.6 м²
Октябрьская
Москва, Центральный административный округ, улица Крымский Вал,4

1-комнатная квартира, 37.8 м²
Хорошево
Москва, Северо-Западный административный округ, улица Демьяна Бедного, 2к5

3-комнатная квартира, 72.1 м²
Медведково
Московская область, городской округ Мытищи, Мытищи, Ядреево – 17-й микрорайон, улица Колпакова,42к3

2-комнатная квартира, 48.6 м²
Ховрино
Московская область, городской округ Химки, Химки, Ленинградская улица, 19

2-комнатная квартира, 53.2 м²
Котельники
Московская область, городской округ Котельники, Котельники, микрорайон Южный, микрорайон Южный, 11

1-комнатная квартира, 35 м²
Академическая
Москва, Юго-Западный административный округ, улица Винокурова, 12к4

1-комнатная квартира, 30 м²
ВДНХ
Москва, Северо-Восточный административный округ, улица Бориса Галушкина, 20

-комнатная квартира, 26.11 м²
Селигерская
Москва, Северный административный округ,

1-комнатная квартира, 43 м²
Щелковская
Московская область, городской округ Щёлково, Щёлково, микрорайон Заречный, Пролетарский проспект,4к4

3-комнатная квартира, 92.6 м²
Крестьянская застава
Москва, Южный административный округ, Дербеневская набережная,1/2
