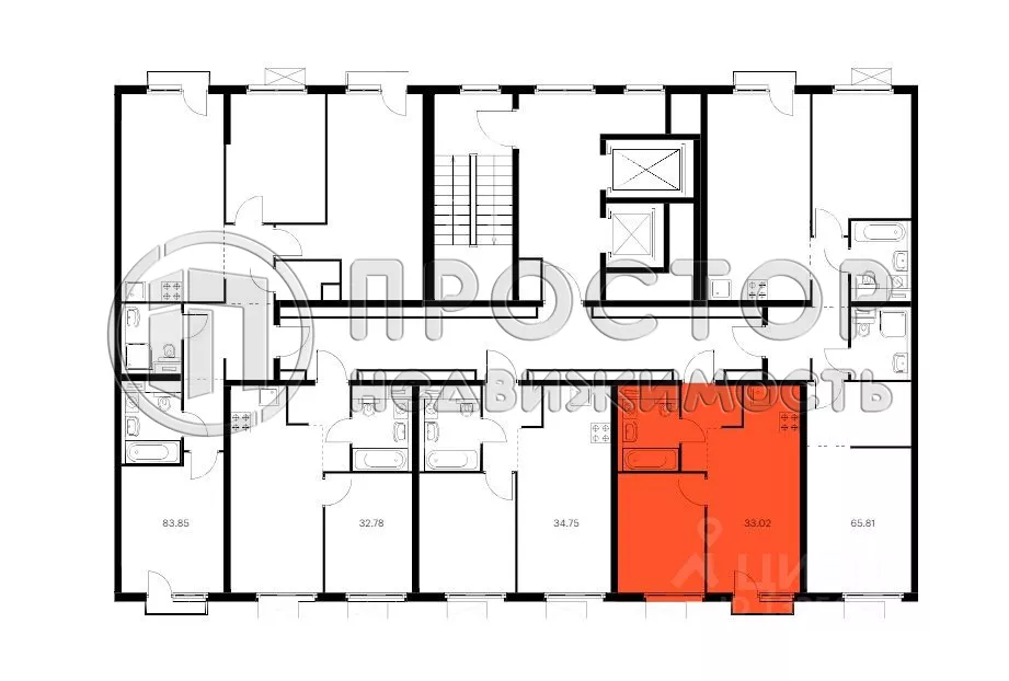
Продается 1-комнатная квартира, 33 м²
Тип сделки
Продажа
Тип продажи
Свободная
Продажа по договору
ДДУ
Новостройка
Да
Название новостройки
ЖК «Железнодорожная, 39»
Год постройки
2023
Состояние строительства
Строится
Тип здания
Панельный
Планировка
Раздельные комнаты
Ремонт
Чистовая в новостройке
Высота потолков, м
2.68 м
Лифт
Да
Балкон/Лоджия
1 балкон
Отопление
Центральное
Санузел
Совмещенный
Совмещенных санузлов
1
Вид из окон
На улицу
Возможна ипотека
Да
Дополнительная информация:
Код объекта: 909734. Переуступка! 1-комнатная квартира в ЖК "Матвеевский парк". Продается 1-комнатная квартира в современном ЖК "Матвеевский парк". Квартира будет сдана с ремонтом от застройщика:функциональная планировка, большие окна с низкими подоконниками. Выполнен качественный ремонт: - на полу ламинат; - в кухонной зоне, ванной и туалете плитка, сантехника установлена; - двухкамерные стеклопакеты - окна увеличенные: 50см от пола и 30см от потолка; - белые обои под покраску - можно красить до 8 раз без потери качества; - все розетки, выключатели установлены, выводы под кондиционеры; - установлены все межкомнатные двери и входная металлическая дверь. Светлый просторный подъезд с входной группой на уровне земли. Дом входит в состав Матвеевского кластера с современной развитой инфраструктурой и комфортным внутренним пространством. Метро в шаговой доступности (м. Аминьевская - 3 мин). До Кутузовского проспекта на машине можно добраться за 6 минут, а до ТТК за 12 минут. На территории "Матвеевского парка" начнут работу две новые школы, три детских сада, блок начальных классов и торговый центр, а на подземных этажах будут паркинги и кладовые. Из каждого дома можно выйти во двор-парк для жителей без посторонних людей и машин. Дом уже построен, идет облагораживание территории. Можно проехать посмотреть. Переуступка! Получение ключей в феврале 2024 года. Звоните, отвечу на все вопросы! Срок сдачи 2023 г.

Квартира снята с продажи
Если вы хотите продать квартиру в Москве и Московской области или купить квартиру в Москве и Московской области - обращайтесь к нам!
Мы всегда поможем!
Спецпредложения:

3-комнатная квартира, 92.6 м²
Крестьянская застава
Москва, Южный административный округ, Дербеневская набережная,1/2

1-комнатная квартира, 30.1 м²
Московская область, Одинцовский городской округ, посёлок городского типа Большие Вязёмы, посёлок Школьный, посёлок Школьный, 2

1-комнатная квартира, 33 м²
Московская область, городской округ Жуковский, Жуковский, 34-й квартал, улица Чкалова,7к2

2-комнатная квартира, 48.6 м²
Ховрино
Московская область, городской округ Химки, Химки, Ленинградская улица, 19

2-комнатная квартира, 50.15 м²
Лухмановская
Московская область, городской округ Люберцы, Люберцы, 3-я Красногорская улица, 34

Студия, 23 м²
Бульвар Дмитрия Донского
Московская область, Ленинский городской округ, рабочий посёлок Лопатино, жилой комплекс Государев Дом, Солнечный бульвар,2

1-комнатная квартира, 35 м²
Академическая
Москва, Юго-Западный административный округ, улица Винокурова, 12к4

2-комнатная квартира, 51.15 м²
Строгино
Московская область, городской округ Красногорск, жилой комплекс Спутник, к15

2-комнатная квартира, 52 м²
Московская область, Зеленоград, Зеленоградский административный округ, 16-й микрорайон, к1619

5-комнатная квартира, 138.6 м²
Октябрьская
Москва, Центральный административный округ, улица Крымский Вал,4

3-комнатная квартира, 71.8 м²
Лухмановская
Московская область, городской округ Люберцы, Люберцы, улица Льва Толстого, 2

2-комнатная квартира, 74.4 м²
Жулебино
Московская область, городской округ Люберцы, Люберцы, жилой комплекс Твин Хаус, улица Кирова, 11

1-комнатная квартира, 29.5 м²
Некрасовка
Московская область, городской округ Люберцы, дачный посёлок Красково, жилой комплекс Новокрасково, Егорьевское шоссе,1к1

2-комнатная квартира, 45.1 м²
Новокосино
Московская область, городской округ Реутов, Реутов, 4-й микрорайон, проспект Мира, 10

3-комнатная квартира, 71 м²
Медведково
Московская область, городской округ Королёв, Королёв, микрорайон Новые Подлипки, улица 50-летия ВЛКСМ, 4В

1-комнатная квартира, 43 м²
Щелковская
Московская область, городской округ Щёлково, Щёлково, микрорайон Заречный, Пролетарский проспект,4к4

2-комнатная квартира, 53.2 м²
Котельники
Московская область, городской округ Котельники, Котельники, микрорайон Южный, микрорайон Южный, 11

3-комнатная квартира, 65 м²
Медведково
Московская область, городской округ Королёв, Королёв, улица Горького, 16к4

3-комнатная квартира, 88.7 м²
Аэропорт Внуково
Московская область, Наро-Фоминский городской округ, Апрелевка, Берёзовая аллея, 5к1

2-комнатная квартира, 39 м²
Царицыно
Москва, Южный административный округ, Бирюлёвская улица,6

2-комнатная квартира, 47 м²
Ярославская область, Ростовский муниципальный округ, посёлок Лесной, Новая улица, 29

1-комнатная квартира, 30 м²
ВДНХ
Москва, Северо-Восточный административный округ, улица Бориса Галушкина, 20

3-комнатная квартира, 72.1 м²
Медведково
Московская область, городской округ Мытищи, Мытищи, Ядреево – 17-й микрорайон, улица Колпакова,42к3

2-комнатная квартира, 51 м²
Давыдково
Москва, Западный административный округ, Вяземская улица, 5

1-комнатная квартира, 34.6 м²
Беляево
Москва, Юго-Западный административный округ, улица Введенского,30к2

5-комнатная квартира, 118.8 м²
Трубная
Москва, Центральный административный округ, Пушкарёв переулок,6

3-комнатная квартира, 68.2 м²
Котельники
Московская область, городской округ Котельники, Котельники, микрорайон Ковровый, Новая улица,17Б

Студия, 28 м²
ЗИЛ
Москва, Южный административный округ, жилой комплекс Шагал

3-комнатная квартира, 115.5 м²
Рижская
Москва, Центральный административный округ, улица Гиляровского,62

1-комнатная квартира, 31.2 м²
Новокосино
Московская область, городской округ Балашиха, Балашиха, микрорайон Балашиха-1, шоссе Энтузиастов, 15

4-комнатная квартира, 98.1 м²
Крестьянская застава
Москва, Юго-Восточный административный округ, 3-й Крутицкий переулок,13

Студия, 26.11 м²
Селигерская
Москва, Северный административный округ,

Студия, 27 м²
Мякинино
Москва, Западный административный округ, 5-я Мякининская улица, 20

1-комнатная квартира, 37.8 м²
Хорошево
Москва, Северо-Западный административный округ, улица Демьяна Бедного, 2к5

1-комнатная квартира, 47.2 м²
Новокосино
Московская область, городской округ Балашиха, Балашиха, микрорайон Балашиха-6, проспект Ленина, 76

3-комнатная квартира, 64 м²
Лобня
Московская область, городской округ Лобня, Лобня, микрорайон Красная Поляна, улица 9 квартал, 6

1-комнатная квартира, 36 м²
Щукинская
Москва, Северо-Западный административный округ, Волоколамское шоссе,41к1
