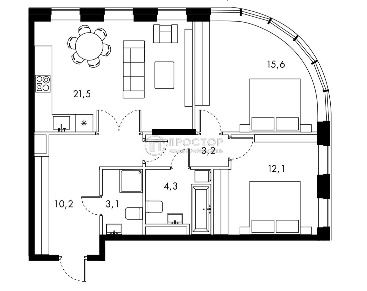
Продается 2-комнатная квартира, 69.8 м²
Москва, Центральный административный округ, улица Новая Дорога,9 на карте
Чкаловская, 13 мин. пешком
4631240884
2
комнат
5/15
этаж
69.8 м²
площадь
28 м²
жилая
21 м²
кухня

Елисеев
Павел Анатольевич
Офис «Таганский»
Давайте я перезвоню вам через 2 минуты и отвечу на любые вопросы об этой недвижимости?
Тип сделки
Продажа
Тип продажи
Свободная
Новостройка
Нет
Год постройки
2022
Тип здания
Кирпично-монолитный
Планировка
Раздельные комнаты
Ремонт
требует ремонта
Лифт
Нет
Санузел
Совмещенный
Вид из окон
На улицу
Возможна ипотека
Нет
Дополнительная информация:
Код объекта: 1693270.
ЖК Bauman House.Предлагается квартира без отделки в новом жилом комплексе бизне- класса в Басманном районе, в пешей доступности от парка Лефортово. Дом введен в эксплуатацию. Функциональная планировка включает кухню-гостиную с тремя окнами в пол, спальню с радиусным остеклением, дополнитлеьную спальню с 2 панорамными окнами, ванную комнату. гостевой с/у. Панорамные виды на зеленые кроны деревьев и в сторону парковой зоны.
Свободная продажа. Полная стоимость в договоре.
Описание проекта
Жилой комплекс Bauman House — это современное жилое пространство, расположенное в престижном районе города. Проект отличается высоким качеством строительства, продуманной инфраструктурой и комфортными условиями для жизни.
Основные преимущества
Современные планировки: просторные квартиры с высокими потолками и эргономичным дизайном.
Инфраструктура: рядом расположены магазины, школы, детские сады, парки и спортивные комплексы.
Транспортная доступность: удобное расположение с хорошим транспортным сообщением, близость к основным автомагистралям и станциям метро.
Безопасность: круглосуточная охрана, видеонаблюдение и современные системы безопасности.
Экологическая обстановка: зеленые зоны, парки и чистый воздух.
Спецпредложения:

3-комнатная квартира, 88.7 м²
Аэропорт Внуково
Московская область, Наро-Фоминский городской округ, Апрелевка, Берёзовая аллея, 5к1

3-комнатная квартира, 72.1 м²
Чкаловская
Московская область, городской округ Мытищи, Мытищи, Ядреево – 17-й микрорайон, улица Колпакова,42к3

Студия, 28 м²
ЗИЛ
Москва, Южный административный округ, жилой комплекс Шагал

3-комнатная квартира, 71.8 м²
Лухмановская
Московская область, городской округ Люберцы, Люберцы, улица Льва Толстого, 2

3-комнатная квартира, 65 м²
Медведково
Московская область, городской округ Королёв, Королёв, улица Горького, 16к4

3-комнатная квартира, 64 м²
Лобня
Московская область, городской округ Лобня, Лобня, микрорайон Красная Поляна, улица 9 квартал, 6

2-комнатная квартира, 50.15 м²
Лухмановская
Московская область, городской округ Люберцы, Люберцы, 3-я Красногорская улица, 34

1-комнатная квартира, 34.6 м²
Чкаловская
Москва, Юго-Западный административный округ, улица Введенского,30к2

3-комнатная квартира, 71 м²
Медведково
Московская область, городской округ Королёв, Королёв, микрорайон Новые Подлипки, улица 50-летия ВЛКСМ, 4В

1-комнатная квартира, 33 м²
Московская область, городской округ Жуковский, Жуковский, 34-й квартал, улица Чкалова,7к2

5-комнатная квартира, 118.8 м²
Чкаловская
Москва, Центральный административный округ, Пушкарёв переулок,6

2-комнатная квартира, 39 м²
Чкаловская
Москва, Южный административный округ, Бирюлёвская улица,6

3-комнатная квартира, 92.6 м²
Чкаловская
Москва, Южный административный округ, Дербеневская набережная,1/2

-комнатная квартира, 26.11 м²
Чкаловская
Москва, Северный административный округ,

1-комнатная квартира, 30 м²
ВДНХ
Москва, Северо-Восточный административный округ, улица Бориса Галушкина, 20

3-комнатная квартира, 115.5 м²
Чкаловская
Москва, Центральный административный округ, улица Гиляровского,62

Студия, 27 м²
Мякинино
Москва, Западный административный округ, 5-я Мякининская улица, 20

1-комнатная квартира, 35 м²
Академическая
Москва, Юго-Западный административный округ, улица Винокурова, 12к4

3-комнатная квартира, 68.2 м²
Чкаловская
Московская область, городской округ Котельники, Котельники, микрорайон Ковровый, Новая улица,17Б

2-комнатная квартира, 45.1 м²
Новокосино
Московская область, городской округ Реутов, Реутов, 4-й микрорайон, проспект Мира, 10

1-комнатная квартира, 47.2 м²
Новокосино
Московская область, городской округ Балашиха, Балашиха, микрорайон Балашиха-6, проспект Ленина, 76

-комнатная квартира, 23 м²
Чкаловская
Московская область, Ленинский городской округ, рабочий посёлок Лопатино, жилой комплекс Государев Дом, Солнечный бульвар,2

2-комнатная квартира, 52 м²
Московская область, Зеленоград, Зеленоградский административный округ, 16-й микрорайон, к1619

2-комнатная квартира, 51 м²
Давыдково
Москва, Западный административный округ, Вяземская улица, 5

4-комнатная квартира, 98.1 м²
Чкаловская
Москва, Юго-Восточный административный округ, 3-й Крутицкий переулок,13

2-комнатная квартира, 48.6 м²
Ховрино
Московская область, городской округ Химки, Химки, Ленинградская улица, 19

2-комнатная квартира, 74.4 м²
Жулебино
Московская область, городской округ Люберцы, Люберцы, жилой комплекс Твин Хаус, улица Кирова, 11

1-комнатная квартира, 31.2 м²
Новокосино
Московская область, городской округ Балашиха, Балашиха, микрорайон Балашиха-1, шоссе Энтузиастов, 15

2-комнатная квартира, 51.15 м²
Чкаловская
Московская область, городской округ Красногорск, жилой комплекс Спутник, к15

1-комнатная квартира, 43 м²
Чкаловская
Московская область, городской округ Щёлково, Щёлково, микрорайон Заречный, Пролетарский проспект,4к4

2-комнатная квартира, 47 м²
Ярославская область, Ростовский муниципальный округ, посёлок Лесной, Новая улица, 29

1-комнатная квартира, 36 м²
Чкаловская
Москва, Северо-Западный административный округ, Волоколамское шоссе,41к1

1-комнатная квартира, 37.8 м²
Хорошево
Москва, Северо-Западный административный округ, улица Демьяна Бедного, 2к5

1-комнатная квартира, 30.1 м²
Московская область, Одинцовский городской округ, посёлок городского типа Большие Вязёмы, посёлок Школьный, посёлок Школьный, 2

5-комнатная квартира, 138.6 м²
Чкаловская
Москва, Центральный административный округ, улица Крымский Вал,4

1-комнатная квартира, 29.5 м²
Чкаловская
Московская область, городской округ Люберцы, дачный посёлок Красково, жилой комплекс Новокрасково, Егорьевское шоссе,1к1

2-комнатная квартира, 53.2 м²
Котельники
Московская область, городской округ Котельники, Котельники, микрорайон Южный, микрорайон Южный, 11
