Продается 2-комнатная квартира, 56.9 м²
Московская область, городской округ Краснознаменск, Краснознаменск, улица Связистов,10к1 на карте
Чкаловская, 23 мин. на транспорте
4631239889
2
комнат
8/17
этаж
56.9 м²
площадь
33 м²
жилая
8 м²
кухня

Барулина
Марина Васильевна
Офис «Новослободский»
Давайте я перезвоню вам через 2 минуты и отвечу на любые вопросы об этой недвижимости?
Тип сделки
Продажа
Тип продажи
Свободная
Новостройка
Нет
Год постройки
1985
Тип здания
Кирпично-монолитный
Планировка
Раздельные комнаты
Ремонт
требует ремонта
Лифт
Нет
Балкон/Лоджия
1 лоджия
Санузел
Раздельный
Возможна ипотека
Нет
Дополнительная информация:
Код объекта: 1634866.
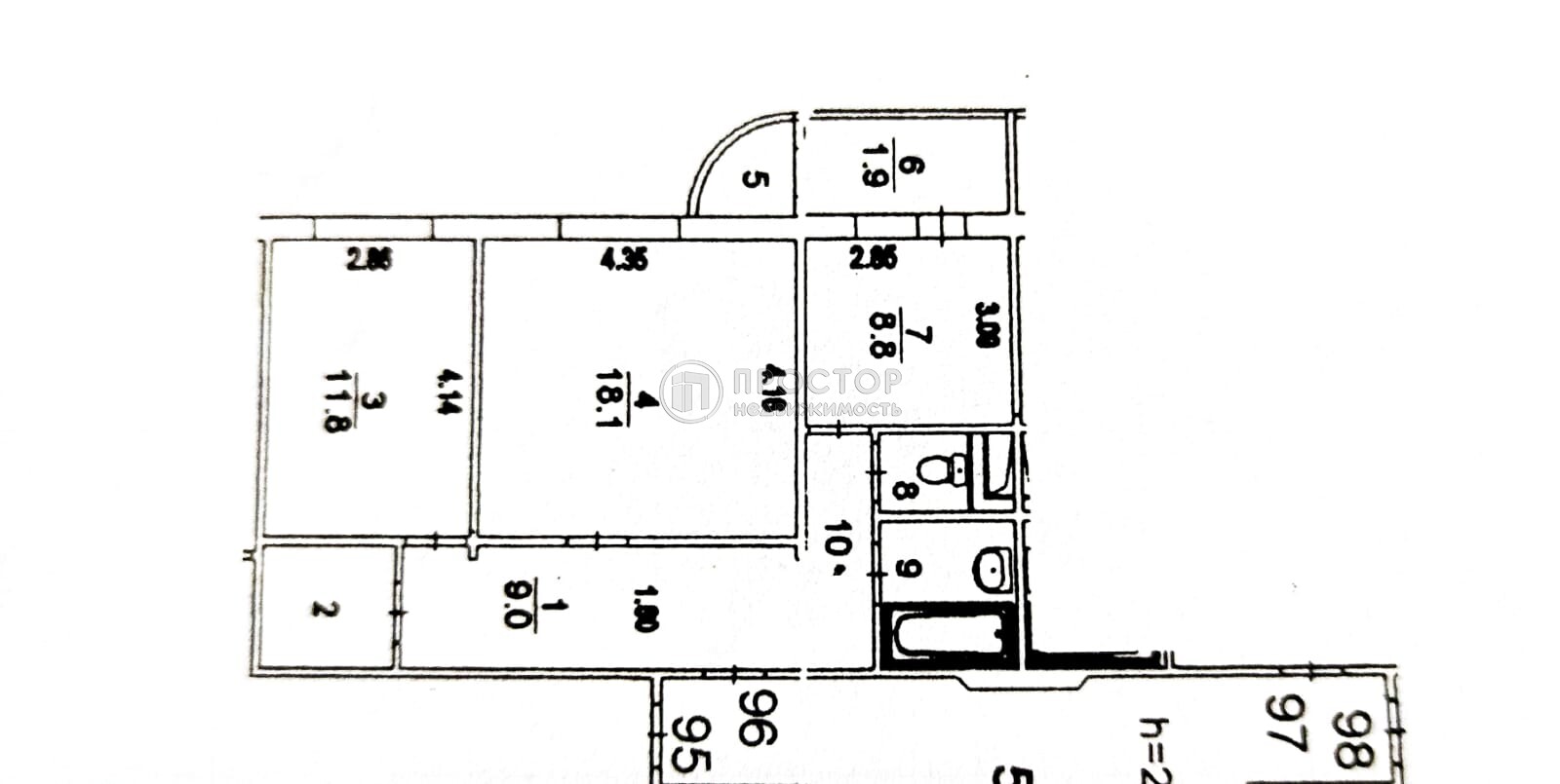
Продаётся просторная двухкомнатная квартира в городе Краснознаменск Московской области. В квартире две изолированные комнаты, кладовая и балкон, выходящий из кухни. Жильё требует ремонта, что предоставляет отличную возможность оформить интерьер по своему вкусу и создать уютное пространство.
Район отличается развитой инфраструктурой, обеспечивающей комфорт и удобство для жизни и отдыха. В шаговой доступности находятся многочисленные магазины, торговый центр «Звёздный», школы, детские сады и образовательные учреждения, поликлиники, а также спортивный комплекс с бассейном. Любители природы оценят близость лесопарковой зоны с оборудованными пешеходными и велодорожками, местами для отдыха, а также двумя озёрами с чистыми пляжами.
Транспортная доступность на высоком уровне: удобный выезд на Минское шоссе, регулярные маршрутные такси и автобусы от станции метро «Парк Победы» и МЦД «Одинцово» обеспечивают быстрое и комфортное перемещение.
Покупателям предоставляется бесплатное юридическое сопровождение сделки и помощь в одобрении ипотеки. Один собственник, свободная продажа, быстрый выход на сделку.
Город Краснознаменск — закрытое административно-территориальное образование, гарантирующее комфорт и спокойствие проживания. Это идеальное место для тех, кто ценит безопасность и качество жизни.
Спецпредложения:

2-комнатная квартира, 52 м²
Московская область, Зеленоград, Зеленоградский административный округ, 16-й микрорайон, к1619

3-комнатная квартира, 72.1 м²
Чкаловская
Московская область, городской округ Мытищи, Мытищи, Ядреево – 17-й микрорайон, улица Колпакова,42к3

1-комнатная квартира, 43 м²
Чкаловская
Московская область, городской округ Щёлково, Щёлково, микрорайон Заречный, Пролетарский проспект,4к4

2-комнатная квартира, 50.15 м²
Лухмановская
Московская область, городской округ Люберцы, Люберцы, 3-я Красногорская улица, 34

-комнатная квартира, 23 м²
Чкаловская
Московская область, Ленинский городской округ, рабочий посёлок Лопатино, жилой комплекс Государев Дом, Солнечный бульвар,2

2-комнатная квартира, 51 м²
Давыдково
Москва, Западный административный округ, Вяземская улица, 5

3-комнатная квартира, 71 м²
Медведково
Московская область, городской округ Королёв, Королёв, микрорайон Новые Подлипки, улица 50-летия ВЛКСМ, 4В

1-комнатная квартира, 36 м²
Чкаловская
Москва, Северо-Западный административный округ, Волоколамское шоссе,41к1

2-комнатная квартира, 47 м²
Ярославская область, Ростовский муниципальный округ, посёлок Лесной, Новая улица, 29

5-комнатная квартира, 138.6 м²
Чкаловская
Москва, Центральный административный округ, улица Крымский Вал,4

2-комнатная квартира, 74.4 м²
Жулебино
Московская область, городской округ Люберцы, Люберцы, жилой комплекс Твин Хаус, улица Кирова, 11

1-комнатная квартира, 47.2 м²
Новокосино
Московская область, городской округ Балашиха, Балашиха, микрорайон Балашиха-6, проспект Ленина, 76

1-комнатная квартира, 29.5 м²
Чкаловская
Московская область, городской округ Люберцы, дачный посёлок Красково, жилой комплекс Новокрасково, Егорьевское шоссе,1к1

5-комнатная квартира, 118.8 м²
Чкаловская
Москва, Центральный административный округ, Пушкарёв переулок,6

3-комнатная квартира, 71.8 м²
Лухмановская
Московская область, городской округ Люберцы, Люберцы, улица Льва Толстого, 2

2-комнатная квартира, 48.6 м²
Ховрино
Московская область, городской округ Химки, Химки, Ленинградская улица, 19

3-комнатная квартира, 65 м²
Медведково
Московская область, городской округ Королёв, Королёв, улица Горького, 16к4

3-комнатная квартира, 64 м²
Лобня
Московская область, городской округ Лобня, Лобня, микрорайон Красная Поляна, улица 9 квартал, 6

2-комнатная квартира, 51.15 м²
Чкаловская
Московская область, городской округ Красногорск, жилой комплекс Спутник, к15

1-комнатная квартира, 31.2 м²
Новокосино
Московская область, городской округ Балашиха, Балашиха, микрорайон Балашиха-1, шоссе Энтузиастов, 15

Студия, 27 м²
Мякинино
Москва, Западный административный округ, 5-я Мякининская улица, 20

1-комнатная квартира, 33 м²
Московская область, городской округ Жуковский, Жуковский, 34-й квартал, улица Чкалова,7к2

4-комнатная квартира, 98.1 м²
Чкаловская
Москва, Юго-Восточный административный округ, 3-й Крутицкий переулок,13

1-комнатная квартира, 37.8 м²
Хорошево
Москва, Северо-Западный административный округ, улица Демьяна Бедного, 2к5

1-комнатная квартира, 30.1 м²
Московская область, Одинцовский городской округ, посёлок городского типа Большие Вязёмы, посёлок Школьный, посёлок Школьный, 2

Студия, 28 м²
ЗИЛ
Москва, Южный административный округ, жилой комплекс Шагал

3-комнатная квартира, 68.2 м²
Чкаловская
Московская область, городской округ Котельники, Котельники, микрорайон Ковровый, Новая улица,17Б

3-комнатная квартира, 115.5 м²
Чкаловская
Москва, Центральный административный округ, улица Гиляровского,62

1-комнатная квартира, 30 м²
ВДНХ
Москва, Северо-Восточный административный округ, улица Бориса Галушкина, 20

2-комнатная квартира, 53.2 м²
Котельники
Московская область, городской округ Котельники, Котельники, микрорайон Южный, микрорайон Южный, 11

3-комнатная квартира, 88.7 м²
Аэропорт Внуково
Московская область, Наро-Фоминский городской округ, Апрелевка, Берёзовая аллея, 5к1

2-комнатная квартира, 39 м²
Чкаловская
Москва, Южный административный округ, Бирюлёвская улица,6

-комнатная квартира, 26.11 м²
Чкаловская
Москва, Северный административный округ,

3-комнатная квартира, 92.6 м²
Чкаловская
Москва, Южный административный округ, Дербеневская набережная,1/2

1-комнатная квартира, 35 м²
Академическая
Москва, Юго-Западный административный округ, улица Винокурова, 12к4

1-комнатная квартира, 34.6 м²
Чкаловская
Москва, Юго-Западный административный округ, улица Введенского,30к2

2-комнатная квартира, 45.1 м²
Новокосино
Московская область, городской округ Реутов, Реутов, 4-й микрорайон, проспект Мира, 10
