Продается 3-комнатная квартира, 62.8 м²
Тип сделки
Продажа
Тип продажи
Свободная
Новостройка
Нет
Год постройки
1973
Тип здания
Панельный
Планировка
Раздельные комнаты
Высота потолков, м
2.7 м
Лифт
Да
Возможна ипотека
Да
Дополнительная информация:
Арт. 35677381
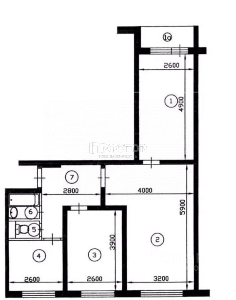
Продаётся 3-комнатная квартира в Южном Чертаново.
Комнаты и санузел раздельные. Просторные комнаты, функциональный коридор, лоджия.
Квартира требует косметического ремонта.
Тамбур на 2 квартиры. 2 лифта, мусоропровод. Тихие соседи.
Район утопает в зелени. Школа, сад, поликлиника, супермаркеты в шаговой доступности. Детская площадка во дворе.
Удобный выезд на МКАД и Варшавское шоссе.
1 собственник. Полная стоимость в ДКП. Помощь в оформлении ипотеки.
Рассмотрю обмен квартиры в любом районе Москвы.

Квартира снята с продажи
Если вы хотите продать квартиру в Москве и Московской области или купить квартиру в Москве и Московской области - обращайтесь к нам!
Мы всегда поможем!
Спецпредложения:

1-комнатная квартира, 47.2 м²
Новокосино
Московская область, городской округ Балашиха, Балашиха, микрорайон Балашиха-6, проспект Ленина, 76

2-комнатная квартира, 53.2 м²
Котельники
Московская область, городской округ Котельники, Котельники, микрорайон Южный, микрорайон Южный, 11

1-комнатная квартира, 30 м²
ВДНХ
Москва, Северо-Восточный административный округ, улица Бориса Галушкина, 20

3-комнатная квартира, 65 м²
Медведково
Московская область, городской округ Королёв, Королёв, улица Горького, 16к4

1-комнатная квартира, 31.2 м²
Новокосино
Московская область, городской округ Балашиха, Балашиха, микрорайон Балашиха-1, шоссе Энтузиастов, 15

1-комнатная квартира, 35 м²
Академическая
Москва, Юго-Западный административный округ, улица Винокурова, 12к4

2-комнатная квартира, 45.1 м²
Новокосино
Московская область, городской округ Реутов, Реутов, 4-й микрорайон, проспект Мира, 10

2-комнатная квартира, 48.6 м²
Ховрино
Московская область, городской округ Химки, Химки, Ленинградская улица, 19

3-комнатная квартира, 88.7 м²
Аэропорт Внуково
Московская область, Наро-Фоминский городской округ, Апрелевка, Берёзовая аллея, 5к1

Студия, 27 м²
Мякинино
Москва, Западный административный округ, 5-я Мякининская улица, 20

2-комнатная квартира, 52 м²
Московская область, Зеленоград, Зеленоградский административный округ, 16-й микрорайон, к1619

2-комнатная квартира, 50.15 м²
Лухмановская
Московская область, городской округ Люберцы, Люберцы, 3-я Красногорская улица, 34

2-комнатная квартира, 74.4 м²
Жулебино
Московская область, городской округ Люберцы, Люберцы, жилой комплекс Твин Хаус, улица Кирова, 11

3-комнатная квартира, 64 м²
Лобня
Московская область, городской округ Лобня, Лобня, микрорайон Красная Поляна, улица 9 квартал, 6

2-комнатная квартира, 51 м²
Давыдково
Москва, Западный административный округ, Вяземская улица, 5

Студия, 28 м²
ЗИЛ
Москва, Южный административный округ, жилой комплекс Шагал

3-комнатная квартира, 71 м²
Медведково
Московская область, городской округ Королёв, Королёв, микрорайон Новые Подлипки, улица 50-летия ВЛКСМ, 4В

3-комнатная квартира, 71.8 м²
Лухмановская
Московская область, городской округ Люберцы, Люберцы, улица Льва Толстого, 2

1-комнатная квартира, 37.8 м²
Хорошево
Москва, Северо-Западный административный округ, улица Демьяна Бедного, 2к5

1-комнатная квартира, 30.1 м²
Московская область, Одинцовский городской округ, посёлок городского типа Большие Вязёмы, посёлок Школьный, посёлок Школьный, 2

2-комнатная квартира, 47 м²
Ярославская область, Ростовский муниципальный округ, посёлок Лесной, Новая улица, 29
