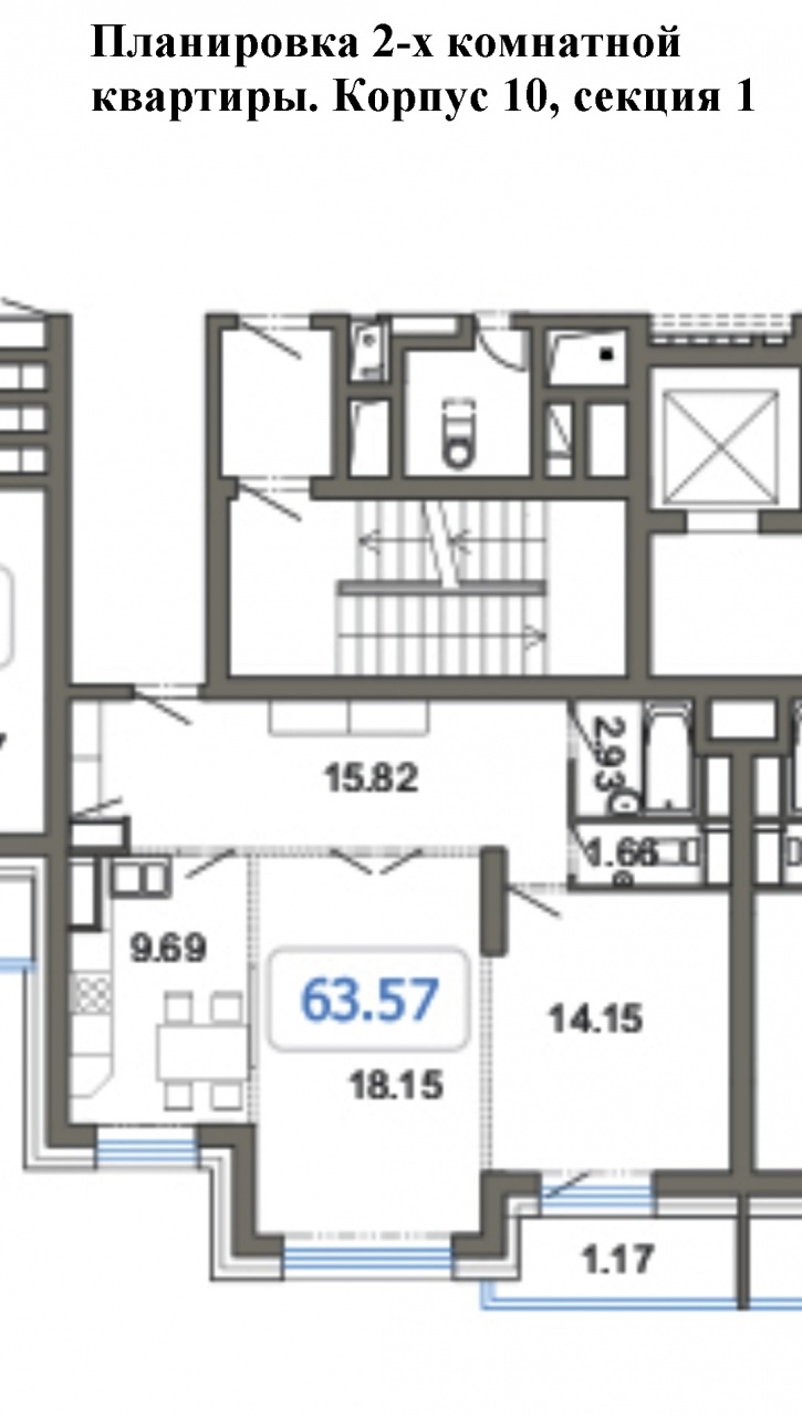
Продается 2-комнатная квартира, 63.57 м²
Тип сделки
Продажа
Тип продажи
Свободная
Новостройка
Да
Год постройки
2020
Тип здания
Кирпично-монолитный
Планировка
Раздельные комнаты
Высота потолков, м
3 м
Лифт
Да
Вид из окон
На улицу
Возможна ипотека
Да
Дополнительная информация:
Арт. 25379028 Великолепная новая квартира в современном монолитном ЖК "Спасский мост", с потрясающим панорамным видом на Москва-реку. Дом сдается до 15 марта. Квартира линейной планировки, без отделки, в состоянии «свободной планировки» с трассировкой стен. К квартире дополнительно примыкает тамбур 12 кв.м. на одного хозяина, который можно использовать для хранения велосипедов, колясок. Дом расположен самым удачным образом по отношению въезда-выезда из микрорайона. В жилом комплексе собственная закрытая территория, подземный паркинг, охрана, видеонаблюдение. Отличное местоположение с благоприятной экологической обстановкой и современной инфраструктурой. В пешей доступности ст.м. Мякинино и Волоколамская, а также станция МЦД-2 Пинягино (20 минут). Школы, сады, поликлиники, фитнес-центры присутствуют. Ландшафтный парк Митино, обустроенная набережная, ТРЦ VEGAS, горнолыжный центр "Снежком" и многое другое. Один взрослый собственник. Квартира юридически и физически свободна.

Квартира снята с продажи
Если вы хотите продать квартиру в Москве и Московской области или купить квартиру в Москве и Московской области - обращайтесь к нам!
Мы всегда поможем!
Спецпредложения:

2-комнатная квартира, 51 м²
Давыдково
Москва, Западный административный округ, Вяземская улица, 5

1-комнатная квартира, 34.6 м²
Беляево
Москва, Юго-Западный административный округ, улица Введенского,30к2

2-комнатная квартира, 53.2 м²
Котельники
Московская область, городской округ Котельники, Котельники, микрорайон Южный, микрорайон Южный, 11

3-комнатная квартира, 92.6 м²
Крестьянская застава
Москва, Южный административный округ, Дербеневская набережная,1/2

2-комнатная квартира, 50.15 м²
Лухмановская
Московская область, городской округ Люберцы, Люберцы, 3-я Красногорская улица, 34

2-комнатная квартира, 52 м²
Московская область, Зеленоград, Зеленоградский административный округ, 16-й микрорайон, к1619

5-комнатная квартира, 118.8 м²
Трубная
Москва, Центральный административный округ, Пушкарёв переулок,6

3-комнатная квартира, 71.8 м²
Лухмановская
Московская область, городской округ Люберцы, Люберцы, улица Льва Толстого, 2

1-комнатная квартира, 31.2 м²
Новокосино
Московская область, городской округ Балашиха, Балашиха, микрорайон Балашиха-1, шоссе Энтузиастов, 15

5-комнатная квартира, 138.6 м²
Октябрьская
Москва, Центральный административный округ, улица Крымский Вал,4

1-комнатная квартира, 35 м²
Академическая
Москва, Юго-Западный административный округ, улица Винокурова, 12к4

3-комнатная квартира, 65 м²
Медведково
Московская область, городской округ Королёв, Королёв, улица Горького, 16к4

Студия, 27 м²
Мякинино
Москва, Западный административный округ, 5-я Мякининская улица, 20

1-комнатная квартира, 43 м²
Щелковская
Московская область, городской округ Щёлково, Щёлково, микрорайон Заречный, Пролетарский проспект,4к4

-комнатная квартира, 26.11 м²
Селигерская
Москва, Северный административный округ,

1-комнатная квартира, 29.5 м²
Некрасовка
Московская область, городской округ Люберцы, дачный посёлок Красково, жилой комплекс Новокрасково, Егорьевское шоссе,1к1

3-комнатная квартира, 88.7 м²
Аэропорт Внуково
Московская область, Наро-Фоминский городской округ, Апрелевка, Берёзовая аллея, 5к1

1-комнатная квартира, 47.2 м²
Новокосино
Московская область, городской округ Балашиха, Балашиха, микрорайон Балашиха-6, проспект Ленина, 76

2-комнатная квартира, 48.6 м²
Ховрино
Московская область, городской округ Химки, Химки, Ленинградская улица, 19

-комнатная квартира, 23 м²
Бульвар Дмитрия Донского
Московская область, Ленинский городской округ, рабочий посёлок Лопатино, жилой комплекс Государев Дом, Солнечный бульвар,2

1-комнатная квартира, 30 м²
ВДНХ
Москва, Северо-Восточный административный округ, улица Бориса Галушкина, 20

1-комнатная квартира, 33 м²
Московская область, городской округ Жуковский, Жуковский, 34-й квартал, улица Чкалова,7к2

2-комнатная квартира, 45.1 м²
Новокосино
Московская область, городской округ Реутов, Реутов, 4-й микрорайон, проспект Мира, 10

4-комнатная квартира, 98.1 м²
Крестьянская застава
Москва, Юго-Восточный административный округ, 3-й Крутицкий переулок,13

3-комнатная квартира, 68.2 м²
Котельники
Московская область, городской округ Котельники, Котельники, микрорайон Ковровый, Новая улица,17Б

1-комнатная квартира, 30.1 м²
Московская область, Одинцовский городской округ, посёлок городского типа Большие Вязёмы, посёлок Школьный, посёлок Школьный, 2

2-комнатная квартира, 51.15 м²
Строгино
Московская область, городской округ Красногорск, жилой комплекс Спутник, к15

3-комнатная квартира, 64 м²
Лобня
Московская область, городской округ Лобня, Лобня, микрорайон Красная Поляна, улица 9 квартал, 6

3-комнатная квартира, 71 м²
Медведково
Московская область, городской округ Королёв, Королёв, микрорайон Новые Подлипки, улица 50-летия ВЛКСМ, 4В

Студия, 28 м²
ЗИЛ
Москва, Южный административный округ, жилой комплекс Шагал

1-комнатная квартира, 37.8 м²
Хорошево
Москва, Северо-Западный административный округ, улица Демьяна Бедного, 2к5

3-комнатная квартира, 115.5 м²
Рижская
Москва, Центральный административный округ, улица Гиляровского,62

1-комнатная квартира, 36 м²
Щукинская
Москва, Северо-Западный административный округ, Волоколамское шоссе,41к1

2-комнатная квартира, 39 м²
Царицыно
Москва, Южный административный округ, Бирюлёвская улица,6

2-комнатная квартира, 47 м²
Ярославская область, Ростовский муниципальный округ, посёлок Лесной, Новая улица, 29

2-комнатная квартира, 74.4 м²
Жулебино
Московская область, городской округ Люберцы, Люберцы, жилой комплекс Твин Хаус, улица Кирова, 11

3-комнатная квартира, 72.1 м²
Медведково
Московская область, городской округ Мытищи, Мытищи, Ядреево – 17-й микрорайон, улица Колпакова,42к3
