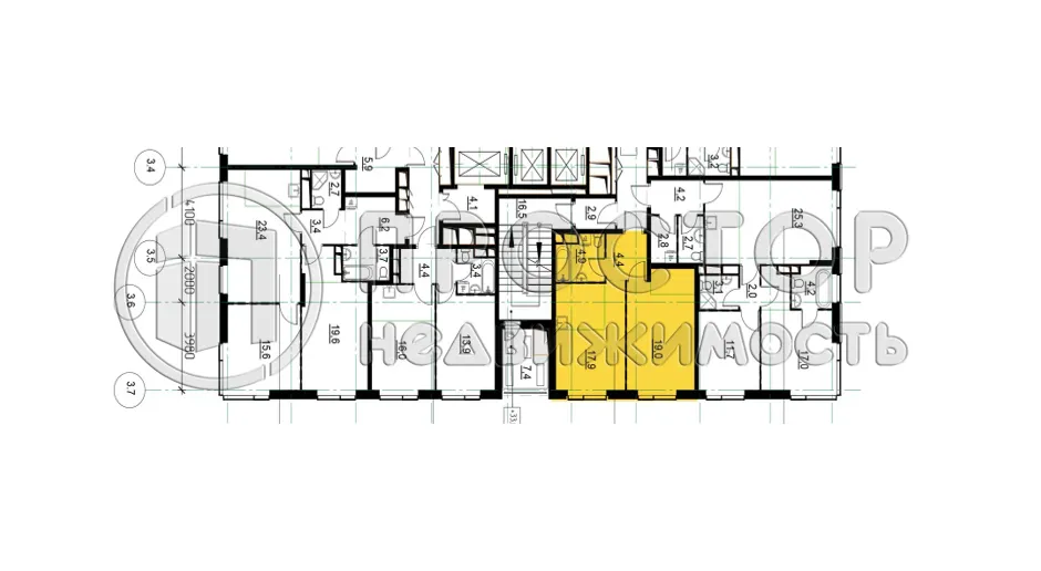
Продается 1-комнатная квартира, 46.2 м²
Москва, Северо-Западный административный округ, жилой комплекс Алиа, к3 на карте
Спартак, 11 мин. пешком
1792530
1
комнат
11/30
этаж
46.2 м²
площадь
19 м²
жилая
17.9 м²
кухня

Реутов
Олег Викторович
Офис «Красносельский»
Давайте я перезвоню вам через 2 минуты и отвечу на любые вопросы об этой недвижимости?
Тип сделки
Продажа
Тип продажи
Свободная
Продажа по договору
Уступки
Новостройка
Да
Название новостройки
жилой район ?LIA
Год постройки
2028
Состояние строительства
Строится
Тип здания
Кирпично-монолитный
Планировка
Раздельные комнаты
Ремонт
Без отделки
Лифт
Нет
Отопление
Центральное
Санузел
Совмещенный
Совмещенных санузлов
1
Вид из окон
На улицу
Возможна ипотека
Да
Дополнительная информация:
Код объекта: 1792530. Проект разработан архитектурным бюро Skidmore и Owings & Merrill, которое является создателем небоскреба Burj Khalifa. Он включает в себя несколько жилых кварталов, которые занимают 600 000 кв.м. Высота домов варьируется от 11 до 27 этажей. В каждом подъезде выполнена дизайнерская отделка. В состав комплекса входит два детских сада на 650 мест, две школы на 1925 мест, поликлиника и спортивный комплекс. Для автовладельцев предусмотрен подземный паркинг с станциями для зарядки электромобилей на 1286 мест. Территория комплекса закрыта от машин и случайных прохожих. Вход осуществляется по специальным картам. Проект ландшафтного дизайна разработан в компании Gillespies. В микрорайоне высадят центральный парк и благоустроят набережную Москвы-реки. Жилой квартал расположен на берегу реки-Москвы напротив зеленой зоны — Большого Строгинского затона и Серебряного бора. Метро «Тушинская» и «Спартак» находятся в 15 минутах пешком. Срок сдачи 2028 г.
Спецпредложения:

2-комнатная квартира, 53.2 м²
Котельники
Московская область, городской округ Котельники, Котельники, микрорайон Южный, микрорайон Южный, 11

3-комнатная квартира, 88.7 м²
Аэропорт Внуково
Московская область, Наро-Фоминский городской округ, Апрелевка, Берёзовая аллея, 5к1

3-комнатная квартира, 65 м²
Медведково
Московская область, городской округ Королёв, Королёв, улица Горького, 16к4

2-комнатная квартира, 50.15 м²
Лухмановская
Московская область, городской округ Люберцы, Люберцы, 3-я Красногорская улица, 34

2-комнатная квартира, 51 м²
Давыдково
Москва, Западный административный округ, Вяземская улица, 5

3-комнатная квартира, 71 м²
Медведково
Московская область, городской округ Королёв, Королёв, микрорайон Новые Подлипки, улица 50-летия ВЛКСМ, 4В

3-комнатная квартира, 64 м²
Лобня
Московская область, городской округ Лобня, Лобня, микрорайон Красная Поляна, улица 9 квартал, 6

1-комнатная квартира, 30 м²
ВДНХ
Москва, Северо-Восточный административный округ, улица Бориса Галушкина, 20

Студия, 27 м²
Мякинино
Москва, Западный административный округ, 5-я Мякининская улица, 20

1-комнатная квартира, 35 м²
Академическая
Москва, Юго-Западный административный округ, улица Винокурова, 12к4

1-комнатная квартира, 37.8 м²
Хорошево
Москва, Северо-Западный административный округ, улица Демьяна Бедного, 2к5

1-комнатная квартира, 30.1 м²
Московская область, Одинцовский городской округ, посёлок городского типа Большие Вязёмы, посёлок Школьный, посёлок Школьный, 2

2-комнатная квартира, 48.6 м²
Ховрино
Московская область, городской округ Химки, Химки, Ленинградская улица, 19

3-комнатная квартира, 71.8 м²
Лухмановская
Московская область, городской округ Люберцы, Люберцы, улица Льва Толстого, 2

1-комнатная квартира, 47.2 м²
Новокосино
Московская область, городской округ Балашиха, Балашиха, микрорайон Балашиха-6, проспект Ленина, 76

Студия, 28 м²
ЗИЛ
Москва, Южный административный округ, жилой комплекс Шагал

2-комнатная квартира, 47 м²
Ярославская область, Ростовский муниципальный округ, посёлок Лесной, Новая улица, 29

1-комнатная квартира, 31.2 м²
Новокосино
Московская область, городской округ Балашиха, Балашиха, микрорайон Балашиха-1, шоссе Энтузиастов, 15

2-комнатная квартира, 74.4 м²
Жулебино
Московская область, городской округ Люберцы, Люберцы, жилой комплекс Твин Хаус, улица Кирова, 11

2-комнатная квартира, 52 м²
Московская область, Зеленоград, Зеленоградский административный округ, 16-й микрорайон, к1619

2-комнатная квартира, 45.1 м²
Новокосино
Московская область, городской округ Реутов, Реутов, 4-й микрорайон, проспект Мира, 10
