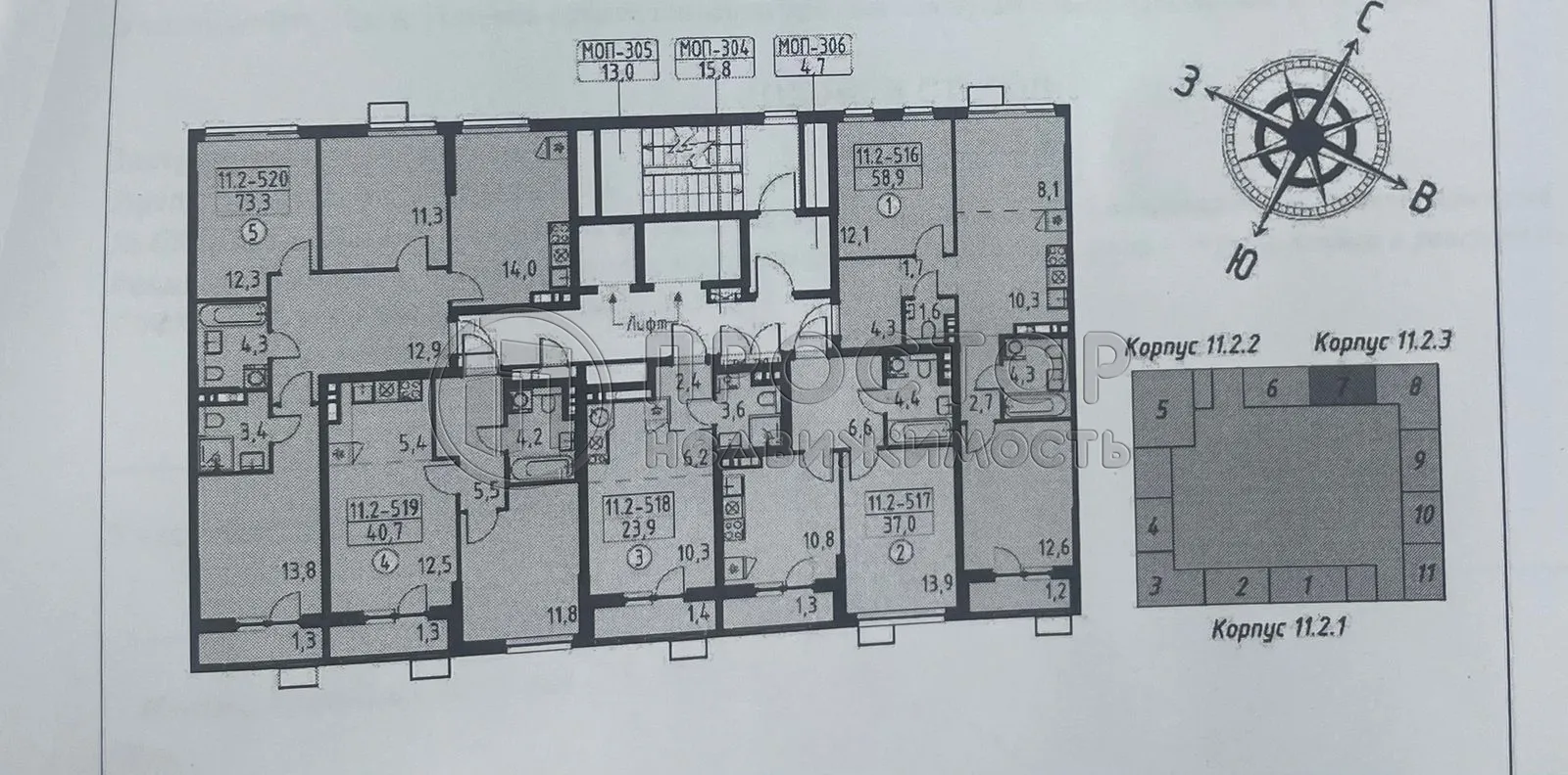
Продается 2-комнатная квартира, 58.9 м²
Квартира снята с продажи
ПодробнееМосква, Новомосковский административный округ, квартал № 26, квартал № 26, к11.2.2 на карте
Прокшино , 19 мин. пешком
1678381
2
комнат
6/17
этаж
58.9 м²
площадь
32.8 м²
жилая
10.3 м²
кухня

Мельникова
Юлия Васильевна
Офис «Новослободский»
Давайте я перезвоню вам через 2 минуты и отвечу на любые вопросы об этой недвижимости?
Тип сделки
Продажа
Тип продажи
Свободная
Продажа по договору
Уступки
Новостройка
Да
Название новостройки
ЖК «Прокшино»
Год постройки
2025
Состояние строительства
Строится
Тип здания
Кирпично-монолитный
Планировка
Раздельные комнаты
Ремонт
Чистовая
Лифт
Нет
Отопление
Центральное
Санузел
2
Раздельных санузлов
1
Совмещенных санузлов
1
Вид из окон
На улицу
Возможна ипотека
Да
Дополнительная информация:
Код объекта: 1678381. Жилой комплекс «Прокшино» состоит из 10 домов высотой от 16 до 18 этажей, построены по кирпично-монолитной технологии. Навесные вентилируемые фасады выполнены из керамогранита. Для каждой группы домов предусмотрен свой дизайн и оформление входных групп. В ЖК представлен широкий выбор планировочных решений – от студий до четырехкомнатных. Покупателям предлагаются квартиры без отделки, с подчистовой отделкой, а также два варианта чистовой отделки – в теплых и холодных тонах. Для автовладельцев в ЖК «Прокшино» предусмотрен подземный паркинг на 523 машиноместа и наземные гостевые автостоянки. Каждый корпус оборудован бесшумными скоростными лифтами, спускающимися до паркинга. Жильцам также доступны кладовые помещения на уровне подземного и цокольного этажей. На территории комплекса произведено озеленение, оборудованы детские и спортивные площадки, прогулочные зоны и зоны отдыха. На первых этажах отведено место под коммерческие помещения, где расположены детские развивающие центры, творческие и спортивные студии, фитнес-центры, медицинские центры, кафе, рестораны, пекарни и продовольственные магазины. В проект ЖК «Прокшино» входят две школы, рассчитанных на 3000 мест и несколько детских садов на 1040 мест. ЖК находится на берегу Хованского пруда и реки Сосенки. В 200 метрах от комплекса находится лесопарк Хованская дубрава. В пешей доступности спроектированы бизнес-квартал «Прокшино» и спортивный комплекс «Прокшино ADRENALINE». Станция метро «Прокшино» в 10 минутах пешком. Срок сдачи 2025 г.

Квартира снята с продажи
Если вы хотите продать квартиру в Москве и Московской области или купить квартиру в Москве и Московской области - обращайтесь к нам!
Мы всегда поможем!
Спецпредложения:

3-комнатная квартира, 71 м²
Медведково
Московская область, городской округ Королёв, Королёв, микрорайон Новые Подлипки, улица 50-летия ВЛКСМ, 4В

2-комнатная квартира, 53.2 м²
Котельники
Московская область, городской округ Котельники, Котельники, микрорайон Южный, микрорайон Южный, 11

1-комнатная квартира, 30 м²
ВДНХ
Москва, Северо-Восточный административный округ, улица Бориса Галушкина, 20

Студия, 27 м²
Мякинино
Москва, Западный административный округ, 5-я Мякининская улица, 20

1-комнатная квартира, 47.2 м²
Новокосино
Московская область, городской округ Балашиха, Балашиха, микрорайон Балашиха-6, проспект Ленина, 76

2-комнатная квартира, 50.15 м²
Лухмановская
Московская область, городской округ Люберцы, Люберцы, 3-я Красногорская улица, 34

2-комнатная квартира, 51 м²
Давыдково
Москва, Западный административный округ, Вяземская улица, 5

1-комнатная квартира, 35 м²
Академическая
Москва, Юго-Западный административный округ, улица Винокурова, 12к4

1-комнатная квартира, 37.8 м²
Хорошево
Москва, Северо-Западный административный округ, улица Демьяна Бедного, 2к5

3-комнатная квартира, 71.8 м²
Лухмановская
Московская область, городской округ Люберцы, Люберцы, улица Льва Толстого, 2

3-комнатная квартира, 64 м²
Лобня
Московская область, городской округ Лобня, Лобня, микрорайон Красная Поляна, улица 9 квартал, 6

Студия, 28 м²
ЗИЛ
Москва, Южный административный округ, жилой комплекс Шагал

2-комнатная квартира, 45.1 м²
Новокосино
Московская область, городской округ Реутов, Реутов, 4-й микрорайон, проспект Мира, 10

2-комнатная квартира, 48.6 м²
Ховрино
Московская область, городской округ Химки, Химки, Ленинградская улица, 19

2-комнатная квартира, 74.4 м²
Жулебино
Московская область, городской округ Люберцы, Люберцы, жилой комплекс Твин Хаус, улица Кирова, 11

1-комнатная квартира, 31.2 м²
Новокосино
Московская область, городской округ Балашиха, Балашиха, микрорайон Балашиха-1, шоссе Энтузиастов, 15

3-комнатная квартира, 88.7 м²
Аэропорт Внуково
Московская область, Наро-Фоминский городской округ, Апрелевка, Берёзовая аллея, 5к1

3-комнатная квартира, 65 м²
Медведково
Московская область, городской округ Королёв, Королёв, улица Горького, 16к4

2-комнатная квартира, 47 м²
Ярославская область, Ростовский муниципальный округ, посёлок Лесной, Новая улица, 29

2-комнатная квартира, 52 м²
Московская область, Зеленоград, Зеленоградский административный округ, 16-й микрорайон, к1619

1-комнатная квартира, 30.1 м²
Московская область, Одинцовский городской округ, посёлок городского типа Большие Вязёмы, посёлок Школьный, посёлок Школьный, 2
