Сдается коммерческая недвижимость, 384 м²
Тип сделки
Аренда
Новостройка
Нет
Тип здания
Кирпичный
Высота потолков, м
6 м
Лифт
Нет
Вид из окон
На улицу
Возможна ипотека
Нет
Дополнительная информация:
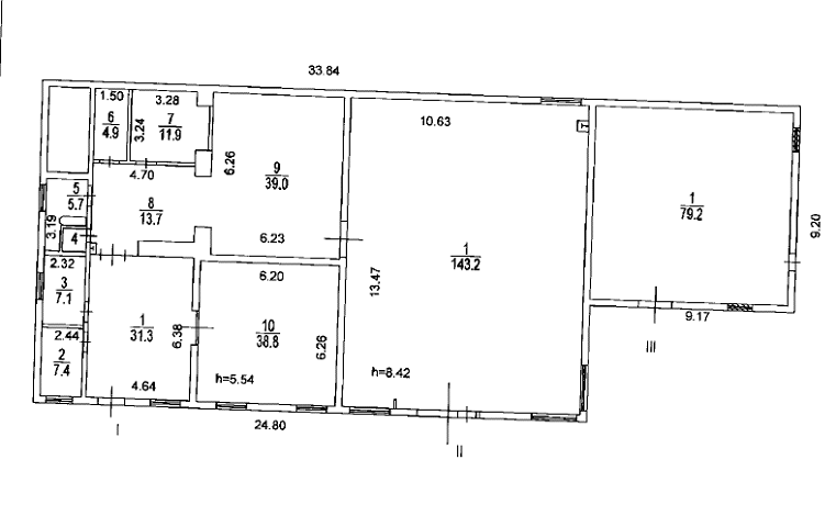
Арт. 7924824 Сдаётся коммерческое помещение в нежилом фонде, на срок от 11 месяцев. Общая площадь 384 кв.м. Помещение расположено на 1 этаже 1 этажного кирпичного дома. Канализация в здании. Электричество есть, напряжение сети 220 В (160 КВт (категория А) ). Имеется несколько входов. Это,отдельно стоящее, нежилое, одноэтажное здание расположенное по ул. Грузинский вал, дом 3а стр.2, находится в 5 минутах от метро Белорусская. Высота потолков от 4 до 6 метров, на воду получены ТУ. Постройка по документам 1954. К зданию примыкает 25 метровая кирпичная труба от недействующей котельной, которая может быть стилизованна под тематику заведения и являться его визитной карточкой. Здание находится на первой линии зданий по ул. Грузинский вал.
Под зданием, по его периметру земельный участок в аренде на 49 лет. Перед зданием свободный земельный участок (около 12 соток) принадлежащий г.Москве, который возможно взять в аренду и использовать под бесплатную парковку посетителей и персонала.
Прилегающая территория, от здания и до железной дороги, Правительством Москвы рассматривается под строительство узловой железнодорожной развязки со строительством станции.

Объект уже арендован
Если вы хотите сдать в аренду коммерческую недвижимость в Москве и Московской области или арендовать коммерческую недвижимость в Москве и Московской области - обращайтесь к нам!
Мы всегда поможем!
Спецпредложения:

Торговое, 19.2 м², продажа
Сокольники
Москва, Восточный административный округ, Сокольническая площадь, 4А

Бизнес, 194 м², продажа
Мякинино
Московская область, городской округ Красногорск, Красногорск, квартал Коммунальный, Знаменская улица, 5

Производственное, 950 м², аренда
Пыхтино
Москва, Новомосковский административный округ, квартал № 30, квартал № 30, 1с1

Земельный участок, м², продажа
Московская область, городской округ Черноголовка, деревня Ботово,

Производственное, 7287.8 м², продажа
Московская область, Одинцовский городской округ, посёлок Часцы, Можайское шоссе, 131Бк4

Земельный участок, м², продажа
Московская область, городской округ Серпухов, посёлок Большевик,

Бизнес, 545 м², продажа
Отрадное
Москва, Северо-Восточный административный округ, улица Римского-Корсакова, 14

Свободного назначения, 1500 м², продажа
Московская область, Зеленоград, Зеленоградский административный округ, 2-й Западный проезд, 2

Земельный участок, м², продажа
Московская область, городской округ Клин, дачный посёлок Аквамарин, 67

Земельный участок, м², продажа
Московская область, Наро-Фоминский городской округ, садоводческое некоммерческое товарищество Тонап,

Земельный участок, м², продажа
Владимирская область, Петушинский район, Покров,

Свободного назначения, 65 м², продажа
Алексеевская
Москва, Северо-Восточный административный округ, проспект Мира, 112

Свободного назначения, 2.8 м², продажа
Ботанический сад
Москва, Северо-Восточный административный округ, Сельскохозяйственная улица, 35

Бизнес, 20 м², продажа
Фили
Москва, Западный административный округ, Береговой проезд, 5к2

Земельный участок, м², продажа
Московская область, городской округ Пушкинский, коттеджный посёлок Тишково Клаб, территория Пестово-Семеновское, территория Пестово-Семеновское, 29

Складское, 4400 м², продажа
Белгородская область, Белгородский район, Белгород, Западный округ, улица Механизаторов, 22

Свободного назначения, 92.1 м², продажа
Верхние Котлы
Москва, Южный административный округ, Севастопольский проспект, 1к5

Свободного назначения, 250 м², продажа
Текстильщики
Москва, Юго-Восточный административный округ, улица Артюхиной, 2

Офисное, 240 м², аренда
Физтех
Московская область, городской округ Мытищи, посёлок Вёшки, торгово-промышленная зона Алтуфьево, Липкинское шоссе, 2-й километр, с7/1

Торговое, 100 м², аренда
Рассказовка
Москва, Новомосковский административный округ, квартал № 30, квартал № 30, 1с1

Складское, 1165.9 м², продажа
Шоссе Энтузиастов
Москва, Восточный административный округ, шоссе Энтузиастов, 56с10А
