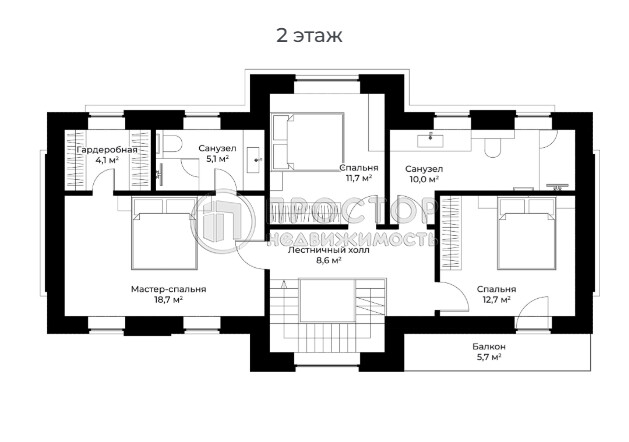
Продается дом, 160 м²
Московская область, городской округ Химки, КП Первый лесной, на карте
Чкаловская, 14 мин. на транспорте
4631239949
4
комнат
2
этажей
160 м²
площадь
57.5 м²
жилая
4.05 с
участок

Терехова
Татьяна Александровна
Офис «Таганский»
Давайте я перезвоню вам через 2 минуты и отвечу на любые вопросы об этой недвижимости?
Тип сделки
Продажа
Тип продажи
Свободная
Год постройки
2025
Тип здания
Блочный
ВРИ
ИЖС
Ремонт
требует ремонта
Высота потолков, м
3 м
Балкон/Лоджия
1 балкон
Санузел
Совмещенный
Возможна ипотека
Нет
Дополнительная информация:
Код объекта: 1614727.
В продаже дом, расположенный в коттеджном поселке бизнес-класса.
ИЖС,
Этот дом уже построен - можно ехать смотреть!
Городское водоснабжение
Городская канализация
Электричество
Газ – Установлен и подключён газовый котел
Все разведено по участкам, и работает, точка подключения включена в стоимость.
Фасад: Натуральный камень - фельзит, Вставки – алюкобонд, Вставки – лиственница
Крыльцо / Балкон: Натуральный камень – базальт
Внешние стены: газобетонный блок (D 500)
Кровля: Гибкая черепица Тегола, Подшивка кровли — лиственница, Утепление по лагам - минеральная вата,
Пароизоляционная мембрана, Гидро-ветрозащитная мембрана, Обрешетка шаговая из обрезной доски.
Окна / Двери: 5-камерный профиль 70 мм, Энергосберегающий 2-х камерный стеклопакет 40 мм.
На фото представлен пример отделки от застройщика.
Пока есть возможность купить два соседних дома, на прилегающих участках.
О локации:
14 детских садов и 7 школ в 5-15 минутах на автомобиле.
До МЕГА-Химки 17 минут на автомобиле.
До Шереметьево 24 минуты на автомобиле.
До Москва-Сити 48 минут на автомобиле.
Спецпредложения:

Дом, 82 м²
Московская область, Раменский муниципальный округ, посёлок Трошково Светлое, улица Горького

Дом, 320 м²
Московская область, муниципальный округ Истра, Истра, микрорайон Полево, Московская улица, 16

Дом, 150 м²
Аэропорт Внуково
Москва, Троицкий административный округ, КП Наследие, квартал № 415, квартал № 415

Дом, 470 м²
Физтех
Московская область, городской округ Мытищи, КП Зелёный мыс, Изумрудный проспект, 71

Дом, 193.3 м²
Московская область, Дмитровский муниципальный округ, посёлок опытного хозяйства Ермолино, 3

Дом, 111.3 м²
Медведково
Московская область, городской округ Мытищи, деревня Болтино, Центральная улица, 25Г

Дом, 97.4 м²
Московская область, Наро-Фоминский городской округ, СНТ Осень, 46

Дом, 120 м²
Московская область, Одинцовский городской округ, деревня Хлюпино, Станционная улица, 26

Дом, 224 м²
Тверская область, Кимрский муниципальный округ, деревня Ваулино, 4

Дом, 122 м²
Щелковская
Московская область, городской округ Щёлково, коттеджный посёлок Борисовка, территория Юпитер, территория Юпитер, 7

Дом, 238 м²
Московская область, муниципальный округ Истра, деревня Ананово, Пенягинская улица, 14

Дом, 47 м²
Московская область, Наро-Фоминский городской округ, СНТ Созидатель, 34

Дом, 700 м²
Московская область, городской округ Чехов, дачное некоммерческое товарищество Белое Озеро, 290

Дом, 165.2 м²
Московская область, городской округ Щёлково, деревня Костюнино, микрорайон Костюнинские дачи, микрорайон Костюнинские дачи

Дом, 128.1 м²
Московская область, Волоколамский муниципальный округ, деревня Еднево, 1-я Партизанская улица, 8

Дом, 64.5 м²
Московская область, городской округ Домодедово, СНТ Дружба-Вельяминово, 42

Дом, 181.7 м²
Кунцевская
Московская область, Одинцовский городской округ, деревня Грязь, 72/1

Дом, 110 м²
Московская область, муниципальный округ Истра, КП Алексино, 52

Дом, 238 м²
Московская область, городской округ Люберцы, село Сельцо, Центральная улица, 27

Таунхаус, 250 м²
Московская область, городской округ Химки, СНТ Эфир, 131

Дом, 68.5 м²
Московская область, городской округ Клин, коттеджный посёлок Клинские рассветы, Никольская улица, 74

Дом, 648.1 м²
Аэропорт Внуково
Москва, Троицкий административный округ, деревня Горчаково, квартал № 280, Солнечная улица
