Продается дом, 120 м²
Московская область, городской округ Домодедово, Домодедово, микрорайон Белые Столбы, на карте
4631239038
3
комнат
1
этажей
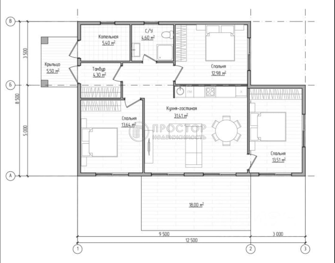
120 м²
площадь
40.13 м²
жилая
8.7 с
участок

Родикова
Анна Юрьевна
Офис «Новослободский»
Давайте я перезвоню вам через 2 минуты и отвечу на любые вопросы об этой недвижимости?
Тип сделки
Продажа
Тип продажи
Свободная
Год постройки
2023
Тип здания
Блочный
ВРИ
ИЖС
Ремонт
Дизайнерский
Высота потолков, м
2.85 м
Санузел
Совмещенный
Возможна ипотека
Нет
Дополнительная информация:
Код объекта: 1315570.
Продается участок с домом в закрытом коттеджном поселке Сиеста Южная, в 35 км от МКАД.
В доме выполнен качественный чистовой ремонт, меблирована кухня, готовый санузел: вы можете сразу заехать и жить! В цену входит вся мебель.
Участок ИЖС 8,7 соток + одноэтажный дом 120 м2.
В доме большая кухня-гостиная, 3 спальни, 1 совмещенный с/у.
Дом построен из качественных строительных материалов в 2023 году. Материал стен - СИП панель 230 мм, утепление 200 мм, фундамент - плита 280мм.
Выполнен качественный ремонт. Разведены водяные теплые полы, установлены оконные блоки Rehau, натяжные потолки. Дом идеально подойдёт для круглогодичного проживания.
Газ по границе участка.
Скважина (вода заведена в дом), септик. Забор к продаже будет установлен.
Поселок заселен на 90%, многие проживают круглый год. КП огорожен, въезд через шлагбаум по пропускам, видеонаблюдение. Территория поселка благоустроена, есть детская площадка, хоккейная коробка, магазин, дороги асфальтированы. В пешей доступности лес и озеро.
Ежемесячные взносы примерно 4000 руб/мес. (уборка, охрана, вывоз мусора).
Из посёлка удобный выезд на ЦКАД, М4, Симферопольское и Каширское шоссе, 10 минут пешком до автобусной остановки.
Один взрослый собственник.
Быстрый выход на сделку. Прямая продажа.
Мы гарантируем безопасную сделку и юридическую поддержку нашим Клиентам. Поможем одобрить ипотеку со сниженной ставкой. Юридическая экспертиза объекта, проведение безопасных сделок с недвижимостью, срочный выкуп Вашей квартиры за один день.
Показы по предварительной договоренности! Звоните!
Спецпредложения:

Дом, 47 м²
Московская область, Наро-Фоминский городской округ, СНТ Созидатель, 34

Дом, 82 м²
Московская область, Раменский муниципальный округ, посёлок Трошково Светлое, улица Горького

Дом, 128.1 м²
Московская область, Волоколамский муниципальный округ, деревня Еднево, 1-я Партизанская улица, 8

Дом, 111.3 м²
Медведково
Московская область, городской округ Мытищи, деревня Болтино, Центральная улица, 25Г

Дом, 120 м²
Московская область, Одинцовский городской округ, деревня Хлюпино, Станционная улица, 26

Дом, 238 м²
Московская область, городской округ Люберцы, село Сельцо, Центральная улица, 27

Дом, 470 м²
Физтех
Московская область, городской округ Мытищи, КП Зелёный мыс, Изумрудный проспект, 71

Дом, 68.5 м²
Московская область, городской округ Клин, коттеджный посёлок Клинские рассветы, Никольская улица, 74

Дом, 224 м²
Тверская область, Кимрский муниципальный округ, деревня Ваулино, 4

Дом, 150 м²
Аэропорт Внуково
Москва, Троицкий административный округ, КП Наследие, квартал № 415, квартал № 415

Дом, 193.3 м²
Московская область, Дмитровский муниципальный округ, посёлок опытного хозяйства Ермолино, 3

Дом, 97.4 м²
Московская область, Наро-Фоминский городской округ, СНТ Осень, 46

Дом, 110 м²
Московская область, муниципальный округ Истра, КП Алексино, 52

Дом, 238 м²
Московская область, муниципальный округ Истра, деревня Ананово, Пенягинская улица, 14

Дом, 700 м²
Московская область, городской округ Чехов, дачное некоммерческое товарищество Белое Озеро, 290

Дом, 648.1 м²
Аэропорт Внуково
Москва, Троицкий административный округ, деревня Горчаково, квартал № 280, Солнечная улица

Дом, 181.7 м²
Кунцевская
Московская область, Одинцовский городской округ, деревня Грязь, 72/1

Дом, 165.2 м²
Московская область, городской округ Щёлково, деревня Костюнино, микрорайон Костюнинские дачи, микрорайон Костюнинские дачи

Дом, 320 м²
Московская область, муниципальный округ Истра, Истра, микрорайон Полево, Московская улица, 16

Дом, 64.5 м²
Московская область, городской округ Домодедово, СНТ Дружба-Вельяминово, 42

Дом, 122 м²
Щелковская
Московская область, городской округ Щёлково, коттеджный посёлок Борисовка, территория Юпитер, территория Юпитер, 7

Таунхаус, 250 м²
Московская область, городской округ Химки, СНТ Эфир, 131
