Продается дом, 117.3 м²
Московская область, городской округ Истра, коттеджный посёлок Аносино Парк, Северная улица на карте
4631239944
4
комнат
1
этажей
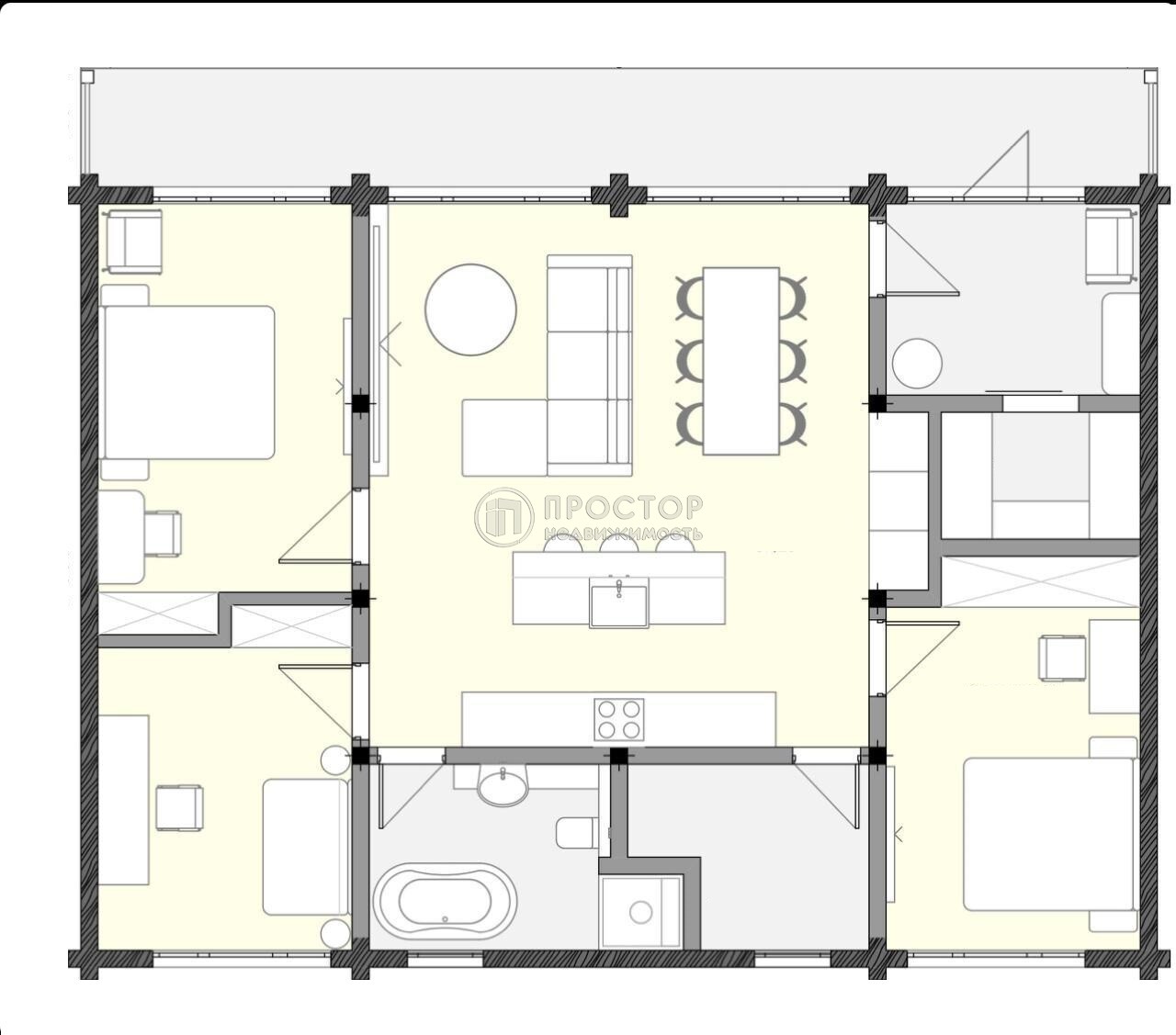
117.3 м²
площадь
62 м²
жилая
5.5 с
участок

Иванова
Анна Сергеевна
Офис «Павелецкий»
Давайте я перезвоню вам через 2 минуты и отвечу на любые вопросы об этой недвижимости?
Тип сделки
Продажа
Тип продажи
Свободная
Год постройки
2025
Тип здания
Деревянный
ВРИ
ИЖС
Ремонт
требует ремонта
Высота потолков, м
5 м
Санузел
Совмещенный
Возможна ипотека
Нет
Дополнительная информация:
Код объекта: 1589540.
Подходит под семейную и ИЖС ипотеку!
Продаётся одноэтажный дом в Истринском районе, д. Аносино.
Дом из алтайского кедра. В качестве строительного материала это дерево просто бесценно. Кедр обладает высокими показателями прочности (они сравнимы со сталью!!!), отменными термо- и звукоизоляционными качествами, устойчивостью к гниению. Крыша- металлочерепица. Дом построен в 2025 году, подходит для круглогодичного проживания.
Коммуникации: газ по границе (будет подключен в ближайшее время), электричество (15 кВт), водоснабжение (скважина), канализация. Отопление, на данный момент, электрическое. Дом без отделки. Есть возможность изменить конфигурацию внутренних помещений. Теплый пол, сделана стяжка. Участок площадью 5.5 соток, правильной формы. Подъезд к участку — асфальт. Соседи построены.
Расположение: деревня Аносино находится в 35 км от города. Это идеальное место для тех, кто ценит тишину и природу, но не хочет отказываться от городских удобств. Рядом нет шумных трасс, что создаёт спокойную атмосферу для жизни. При этом добраться до города можно за разумное время.
Мы гарантируем безопасную сделку и юридическую поддержку нашим Клиентам. Позвоните нам прямо сейчас, чтобы узнать больше!
Спецпредложения:

Дом, 165.2 м²
Московская область, городской округ Щёлково, деревня Костюнино, микрорайон Костюнинские дачи, микрорайон Костюнинские дачи

Дом, 82 м²
Московская область, Раменский муниципальный округ, посёлок Трошково Светлое, улица Горького

Дом, 238 м²
Московская область, городской округ Люберцы, село Сельцо, Центральная улица, 27

Дом, 470 м²
Физтех
Московская область, городской округ Мытищи, КП Зелёный мыс, Изумрудный проспект, 71

Дом, 648.1 м²
Аэропорт Внуково
Москва, Троицкий административный округ, деревня Горчаково, квартал № 280, Солнечная улица

Дом, 68.5 м²
Московская область, городской округ Клин, коттеджный посёлок Клинские рассветы, Никольская улица, 74

Дом, 238 м²
Московская область, муниципальный округ Истра, деревня Ананово, Пенягинская улица, 14

Дом, 181.7 м²
Кунцевская
Московская область, Одинцовский городской округ, деревня Грязь, 72/1

Дом, 97.4 м²
Московская область, Наро-Фоминский городской округ, СНТ Осень, 46

Дом, 224 м²
Тверская область, Кимрский муниципальный округ, деревня Ваулино, 4

Дом, 193.3 м²
Московская область, Дмитровский муниципальный округ, посёлок опытного хозяйства Ермолино, 3

Дом, 47 м²
Московская область, Наро-Фоминский городской округ, СНТ Созидатель, 34

Дом, 150 м²
Аэропорт Внуково
Москва, Троицкий административный округ, КП Наследие, квартал № 415, квартал № 415

Дом, 320 м²
Московская область, муниципальный округ Истра, Истра, микрорайон Полево, Московская улица, 16

Дом, 122 м²
Щелковская
Московская область, городской округ Щёлково, коттеджный посёлок Борисовка, территория Юпитер, территория Юпитер, 7

Таунхаус, 250 м²
Московская область, городской округ Химки, СНТ Эфир, 131

Дом, 128.1 м²
Московская область, Волоколамский муниципальный округ, деревня Еднево, 1-я Партизанская улица, 8

Дом, 111.3 м²
Медведково
Московская область, городской округ Мытищи, деревня Болтино, Центральная улица, 25Г

Дом, 110 м²
Московская область, муниципальный округ Истра, КП Алексино, 52

Дом, 64.5 м²
Московская область, городской округ Домодедово, СНТ Дружба-Вельяминово, 42

Дом, 120 м²
Московская область, Одинцовский городской округ, деревня Хлюпино, Станционная улица, 26

Дом, 700 м²
Московская область, городской округ Чехов, дачное некоммерческое товарищество Белое Озеро, 290
