Продается дом, 150 м²
Тип сделки
Продажа
Тип продажи
Свободная
Год постройки
2023
Тип здания
Монолит
ВРИ
ИЖС
Ремонт
Стяжка-штукатурка
Высота потолков, м
3.1 м
Отопление
Индивидуальный котел
Санузел
4
Раздельных санузлов
1
Совмещенных санузлов
3
Коммуникации
Водоснабжение, Газ, Канализация, Электричество
Возможна ипотека
Да
Дополнительная информация:
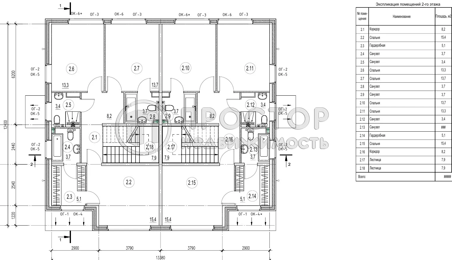
Код объекта: 1345679. Дуплекс 150 кв.м. на участке 2,5 сотки в современном поселке бизнес класса «Аносино Парк», расположенном в 25 км от МКАД по Новорижскому шоссе. Фундамент -монолитная плита. Тип кровли- плоская. Стены - трехслойные монолитные железобетонные панели с 150 мм. утеплителем. Перекрытие - ж/б плиты перекрытия. Этажность- 2 этажа Высота потолков: 3,1 м. Общая площадь, -150 кв.м. Количество спален- 4 спальни. Отделка - без отделки. Участок 2,5 сот. правильной прямоугольной формы. Категория земель: земли населенных пунктов. Вид разрешенного использования - ИЖС. Электричество (15 кВт). Водоснабжение - скважина. Канализация - септик. Поселок газифицирован. Оплата электричества и газа осуществляется по прямым договорам (сельская тарификация).Интернет и телевидение провайдер Всем WiFi со скоростью 150-200 мбит; Двухэтажные секции с просторной гостиной, 4 спальнями, 3 санузлами, гардеробными, панорамными окнами. В секциях возможен широкий выбор планировочных решений, оптимизированных в соответствии с личными пожеланиями. Каждая секция имеет отдельный вход с улицы, парковку, зону барбекю, территория участка обнесена забором. Стены дома собраны из трехслойных железобетонных панелей. Внутри панелей 150 мм утеплителя. Коттеджный посёлок «Аносино Парк» расположен в элитном экологически-чистом Истринском районе по Новорижскому шоссе. В посёлке «Аносино Парк» создана безопасная и уютная среда. Улицы с заборами в едином стиле, тротуарами, газонами вдоль участков и деревьями делают ваше проживание комфортным. Зона благоустройства с разнообразными и современными спортивными и детскими площадками для приятного совместного отдыха с семьей и соседями. Общая площадь коттеджного поселка составляет 25 Га, разделен на 316 участков. Территория поселка охраняемая два въезда через КПП. При въезде имеется гостевой паркинг. Асфальтированные дороги и тротуар на центральных улицах. Территорию поселка обслуживает УК, охрана, видеонаблюдение, чистка дорог зимой, подстрижка газонов, уборка территории. На территории поселка оборудованы детские площадки для детей разных возрастов, Спортивные площадки, футбольная коробка, уличные тренажеры воркаут, настольный теннис, волейбольная площадка. Также на территории поселка расположена парковая зона для прогулок и отдыха. В непосредственной близости расположена вся необходимая социальная инфраструктура (муниципальные поликлиники, детские сады, школы), в шаговой доступности находится гипермаркет «Мираторг», на расстоянии 5 минут езды на автомобиле расположены более 5 различных Гипермаркетов, зона свободной торговли Outlet Village, фермерский рынок. Огромный выбор детских и взрослых спортивных центров. В пешей доступности имеется остановка общественного транспорта маршрутных такси и автобусов, идущих до метро Строгино или Щукинская. Подходит под семейную ипотеку. Помощь в бесплатном одобрении и получении ипотечного кредита. Специальные условия и преференции от ведущих банков-партнеров.
 
                        Объект снят с продажи
                                Если вы хотите продать дом, часть дома, таунхаус или дачу в Москве и Московской области  или купить дом, часть дома, таунхаус или дачу в Москве и Московской области  - обращайтесь к нам! 
Мы всегда поможем!
                            
Спецпредложения:
 
        Дом, 238 м²
Московская область, городской округ Люберцы, село Сельцо, Центральная улица, 27
 
        Дом, 238 м²
Московская область, муниципальный округ Истра, деревня Ананово, Пенягинская улица, 14
 
        Дом, 165.2 м²
Московская область, городской округ Щёлково, деревня Костюнино, микрорайон Костюнинские дачи, микрорайон Костюнинские дачи
 
        Дом, 120 м²
Московская область, Одинцовский городской округ, деревня Хлюпино, Станционная улица, 26
 
        Дом, 128.1 м²
Московская область, Волоколамский муниципальный округ, деревня Еднево, 1-я Партизанская улица, 8
 
        Дом, 110 м²
Московская область, муниципальный округ Истра, КП Алексино, 52
 
        Дом, 47 м²
Московская область, Наро-Фоминский городской округ, СНТ Созидатель, 34
 
        Дом, 82 м²
Московская область, Раменский муниципальный округ, посёлок Трошково Светлое, улица Горького
 
        Дом, 181.7 м²
                            
                Кунцевская
                        
Московская область, Одинцовский городской округ, деревня Грязь, 72/1
 
        Дом, 68.5 м²
Московская область, городской округ Клин, коттеджный посёлок Клинские рассветы, Никольская улица, 74
 
        Дом, 150 м²
                            
                Аэропорт Внуково
                        
Москва, Троицкий административный округ, КП Наследие, квартал № 415, квартал № 415
 
        Таунхаус, 250 м²
Московская область, городской округ Химки, СНТ Эфир, 131
 
        Дом, 193.3 м²
Московская область, Дмитровский муниципальный округ, посёлок опытного хозяйства Ермолино, 3
 
        Дом, 64.5 м²
Московская область, городской округ Домодедово, СНТ Дружба-Вельяминово, 42
 
        Дом, 97.4 м²
Московская область, Наро-Фоминский городской округ, СНТ Осень, 46
 
        Дом, 648.1 м²
                            
                Аэропорт Внуково
                        
Москва, Троицкий административный округ, деревня Горчаково, квартал № 280, Солнечная улица
 
        Дом, 470 м²
                            
                Физтех
                        
Московская область, городской округ Мытищи, КП Зелёный мыс, Изумрудный проспект, 71
 
        Дом, 224 м²
Тверская область, Кимрский муниципальный округ, деревня Ваулино, 4
 
        Дом, 111.3 м²
                            
                Медведково
                        
Московская область, городской округ Мытищи, деревня Болтино, Центральная улица, 25Г
 
        Дом, 700 м²
Московская область, городской округ Чехов, дачное некоммерческое товарищество Белое Озеро, 290
 
        Дом, 320 м²
Московская область, муниципальный округ Истра, Истра, микрорайон Полево, Московская улица, 16
 
        Дом, 122 м²
                            
                Щелковская
                        
Московская область, городской округ Щёлково, коттеджный посёлок Борисовка, территория Юпитер, территория Юпитер, 7
 
  
                         
                                         
                                         
                                         
                                         
                                         
                                         
                                         
                                         
                                         
                                         
                                         
                                         
                                         
                                         
                                        