Продается машиноместо, 13.8 м²
Объект снят с продажи
ПодробнееМосква, Центральный административный округ, улица Казакова, 7 на карте
Курская, 6 мин. пешком
1159377
13.8 м²
площадь

Иванова
Анна Сергеевна
Офис «Павелецкий»
Давайте я перезвоню вам через 2 минуты и отвечу на любые вопросы об этой недвижимости?
Тип сделки
Продажа
Тип продажи
Свободная
Возможна ипотека
Нет
Дополнительная информация:
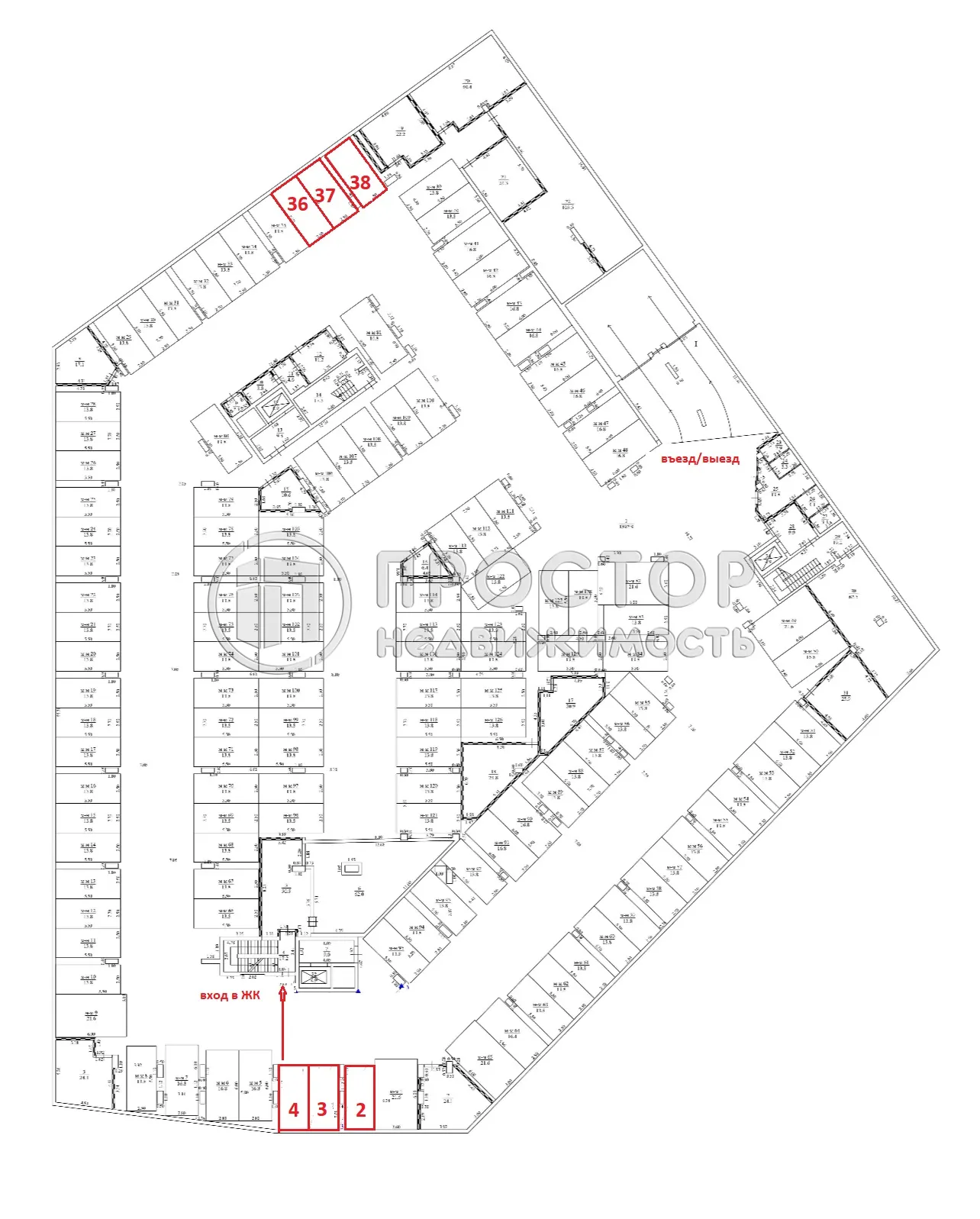
Код объекта: 1159377. Вашему вниманию предлагается машино-место в комплексе Kazakov Grand Loft. Машино-место удобно располагается к входу в ЖК и выезду. Улица Казакова выходит на Садовое кольцо всего в 100 метрах от дома. До Красной Площади легко дойти пешком. Kazakov Grand Loft и Храм Василия Блаженного соединяют полчаса приятной прогулки по благоустроенным Маросейке с Ильинкой. Обширная окружающая территория в 500 Га соткана из творческих кластеров, креативных лабораторий, студий дизайна, образовательных центров и фестивальных площадок. К сделке готовы. Бесплатно одобрим ипотеку и сопроводим на сделку заинтересованного покупателя. Оперативный показ. Добро пожаловать на просмотры!

Объект снят с продажи
Если вы хотите продать или купить машиноместо или гараж в Москве и Московской области - обращайтесь к нам!
Мы всегда поможем!
Спецпредложения:

Машиноместо, 38.4 м²
Румянцево
Москва, Новомосковский административный округ, деревня Румянцево, квартал № 30, улица Инженера Кнорре, 7к1

Гараж, 6 м²
Улица Скобелевская
Московская область, Ленинский городской округ, рабочий посёлок Боброво, жилой комплекс Восточное Бутово, Лесная улица, 2

Гараж, 15.8 м²
Бульвар Рокоссовского
Москва, Восточный административный округ, 6-й проезд Подбельского, 16с1
