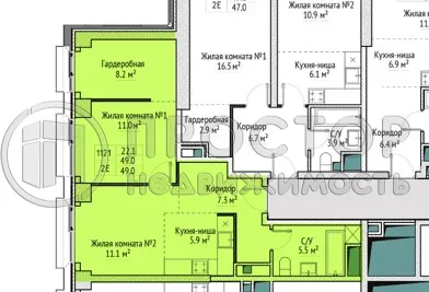
Продается 2-комнатная квартира, 49 м²
Москва, Северо-Восточный административный округ, жилой комплекс Вери на карте
Окружная, 27 мин. пешком
1822919
2
комнат
5/29
этаж
49 м²
площадь
22.1 м²
жилая
16.9 м²
кухня

Толоконникова
Дина Юрьевна
Офис «Новослободский»
Давайте я перезвоню вам через 2 минуты и отвечу на любые вопросы об этой недвижимости?
Тип сделки
Продажа
Тип продажи
Свободная
Продажа по договору
Уступки
Новостройка
Да
Название новостройки
ЖК VERY
Год постройки
2027
Состояние строительства
Строится
Тип здания
Монолит
Планировка
Раздельные комнаты
Ремонт
Без отделки
Высота потолков, м
3.1 м
Лифт
Нет
Отопление
Центральное
Санузел
Совмещенный
Совмещенных санузлов
1
Вид из окон
На улицу
Возможна ипотека
Да
Дополнительная информация:
Код объекта: 1822919. ГК "Простор-Недвижимость" Покупка по семейной ипотеке от 3,5%, айти ипотеке , ТРАНШевая ипотека, беспроцентная рассрочка от застройщика. Трейд-ин (обмен) на Новостройку. Покупка по базовой СТАВКЕ 13,99% на весь период. Продаётся светлая и уютная квартира площадью 49 кв. м на 5 этаже 29-этажного монолитного дома. Квартира имеет изолированные комнаты, общая площадь жилой части составляет 22,1 кв. м, а кухни — 16,9 кв. м. Высота потолков 3,1 м создаёт ощущение простора. Жилой комплекс отличается высоким качеством строительства: монолитные перекрытия и центральная система отопления обеспечивают комфорт и надёжность. Огороженная территория гарантируют безопасность и удобство для жителей. Это идеальный выбор для тех, кто ценит современные решения и хочет создать своё уникальное пространство. Квартира без отделки, что даёт возможность воплотить самые смелые дизайнерские идеи. Звоните нам прямо сейчас, чтобы узнать больше и записаться на просмотр! Мы гарантируем безопасную сделку и юридическую поддержку нашим Клиентам. Поможем одобрить ипотеку с сниженной ставкой. Территория комплекса предусматривает авторское двухуровневое благоустройство и озеленение. В центре двора-парка расположена площадь с фонтаном. Особенная проекта – огромный прогулочный мост – парящая над землей конструкция длиной более 200 метров, с горками и смотровыми площадками. Всего на территории VERY 5 детских площадок, 2 большие спортивные зоны с площадками для игры в волейбол, баскетбол, мини-футбол и зонами фитнеса и воркаута. Общая площадь этих площадок составляет 2,5 тыс. кв. метров. По периметру всего двора сделана велосипедная дорожка. Элементами благоустройства также являются беседки с качелями, навесы и многоуровневая подсветка. На первых этажах находится социально и общественно значимая инфраструктура, а также проектом предусмотрен отдельно стоящий двухэтажный спортивный комплекс с бассейном и детский сад на 100 мест. Для владельцев автомобилей будет предусмотрен подземный паркинг. ЖК находится в районе Марфино. Внешняя инфраструктура развита, в пешей доступности: детские сады, школы, кафе, магазины, медицинские учреждения. Ботанический сад и парк Останкино всего в 5 минутах пешком. До метро «ВДНХ» — 10 минут транспортом. Поможем в одобрении ипотеки, в том числе и БЕЗ первоначального взноса. С удовольствием осуществим трейд-ин (обмен) на Вашу квартиру с доплатой или без. Юридическая экспертиза объекта, проведение безопасных сделок с недвижимостью, срочный выкуп Вашей квартиры за один день! Звоните! Срок сдачи 2027 г.
Спецпредложения:

1-комнатная квартира, 30.1 м²
Московская область, Одинцовский городской округ, посёлок городского типа Большие Вязёмы, посёлок Школьный, посёлок Школьный, 2

2-комнатная квартира, 51 м²
Давыдково
Москва, Западный административный округ, Вяземская улица, 5

2-комнатная квартира, 48.6 м²
Ховрино
Московская область, городской округ Химки, Химки, Ленинградская улица, 19

3-комнатная квартира, 65 м²
Медведково
Московская область, городской округ Королёв, Королёв, улица Горького, 16к4

1-комнатная квартира, 47.2 м²
Новокосино
Московская область, городской округ Балашиха, Балашиха, микрорайон Балашиха-6, проспект Ленина, 76

Студия, 28 м²
ЗИЛ
Москва, Южный административный округ, жилой комплекс Шагал

2-комнатная квартира, 50.15 м²
Лухмановская
Московская область, городской округ Люберцы, Люберцы, 3-я Красногорская улица, 34

3-комнатная квартира, 88.7 м²
Аэропорт Внуково
Московская область, Наро-Фоминский городской округ, Апрелевка, Берёзовая аллея, 5к1

2-комнатная квартира, 45.1 м²
Новокосино
Московская область, городской округ Реутов, Реутов, 4-й микрорайон, проспект Мира, 10

1-комнатная квартира, 37.8 м²
Хорошево
Москва, Северо-Западный административный округ, улица Демьяна Бедного, 2к5

1-комнатная квартира, 35 м²
Академическая
Москва, Юго-Западный административный округ, улица Винокурова, 12к4

2-комнатная квартира, 52 м²
Московская область, Зеленоград, Зеленоградский административный округ, 16-й микрорайон, к1619

3-комнатная квартира, 64 м²
Лобня
Московская область, городской округ Лобня, Лобня, микрорайон Красная Поляна, улица 9 квартал, 6

Студия, 27 м²
Мякинино
Москва, Западный административный округ, 5-я Мякининская улица, 20

2-комнатная квартира, 74.4 м²
Жулебино
Московская область, городской округ Люберцы, Люберцы, жилой комплекс Твин Хаус, улица Кирова, 11

1-комнатная квартира, 30 м²
ВДНХ
Москва, Северо-Восточный административный округ, улица Бориса Галушкина, 20

3-комнатная квартира, 71 м²
Медведково
Московская область, городской округ Королёв, Королёв, микрорайон Новые Подлипки, улица 50-летия ВЛКСМ, 4В

3-комнатная квартира, 71.8 м²
Лухмановская
Московская область, городской округ Люберцы, Люберцы, улица Льва Толстого, 2

2-комнатная квартира, 47 м²
Ярославская область, Ростовский муниципальный округ, посёлок Лесной, Новая улица, 29

2-комнатная квартира, 53.2 м²
Котельники
Московская область, городской округ Котельники, Котельники, микрорайон Южный, микрорайон Южный, 11

1-комнатная квартира, 31.2 м²
Новокосино
Московская область, городской округ Балашиха, Балашиха, микрорайон Балашиха-1, шоссе Энтузиастов, 15
