Продается коммерческая недвижимость (свободного назначения), 847.1 м²
Москва, Южный административный округ, улица Ленинская Слобода,19с3 на карте
Чкаловская, 16 мин. пешком
4631239918
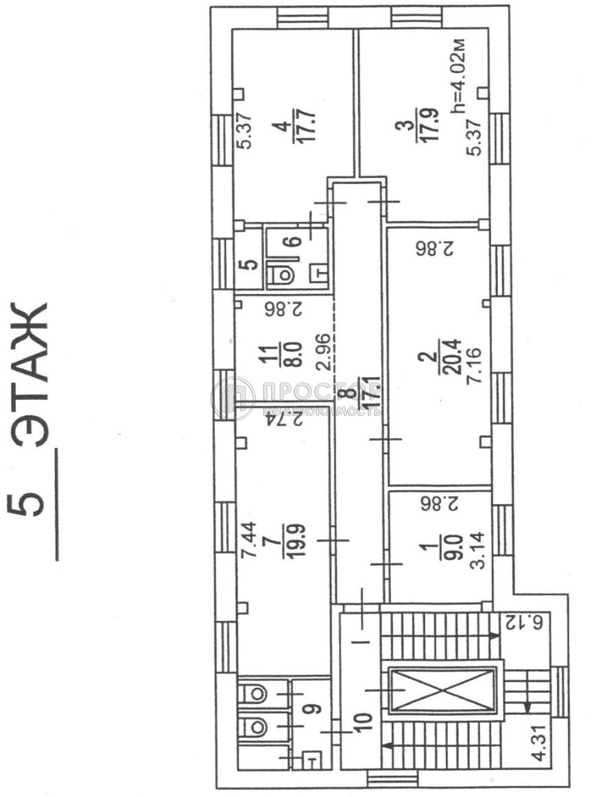
5/5
этаж
847.1 м²
площадь
3 м
потолок

Королев
Владимир Анатольевич
Офис «Павелецкий»
Давайте я перезвоню вам через 2 минуты и отвечу на любые вопросы об этой недвижимости?
Тип сделки
Продажа
Тип продажи
Свободная
Новостройка
Нет
Ремонт
евроремонт
Высота потолков, м
3 м
Лифт
Нет
Возможна ипотека
Нет
Дополнительная информация:
Код объекта: 1631281.
Прямой представитель собственника!!! Вашему вниманию предлагается отдельно стоящее здание (офисно-складское помещение) в историческом районе столицы неподалеку от Симонова Монастыря- памятника 14 века; ТЦ Румер и памятника конструктивизма, построенного в 1930-х годах как многофункциональный дворец культуры ЗИЛ. До станции метро Автозаводская две-три минуты спокойным шагом.
Кирпичное здание в стиле английского фабричного брутализма площадью 847.1 кв.м, с потолками от 3 м, оборудованное системой кондиционирования, приточно-вытяжной вентиляцией, системами тепло и водоснабжения от БЦ «Омега Плаза», противопожарной и пропускной системами (СКУД). Имеются тревожная и охранная сигнализации; системы видеонаблюдения и снеготаяния. Электричество (прямой договор с ОЭК, мощность 90 кВт). Оптический канал (прямой договор с АО Мегафон). Пассажирский лифт с 1 по 5 этажи. Капитальный ремонт здания проведен в 2012 г.
Несколько слов о планировке: в подвале расположено складское помещение с подъемником до первого этажа, оборудованного пандусом и служебным выходом для погрузки;
на первом этаже КПП, склад, кабинет и санузел;
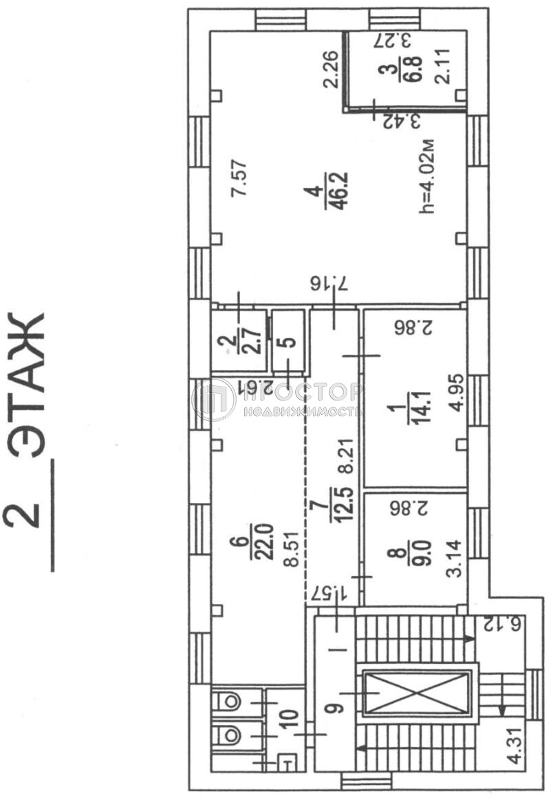
на втором расположен ресепшн, рекреационная зона, 2 кабинета, зал open space;
на третьем 4 кабинета и санузел;
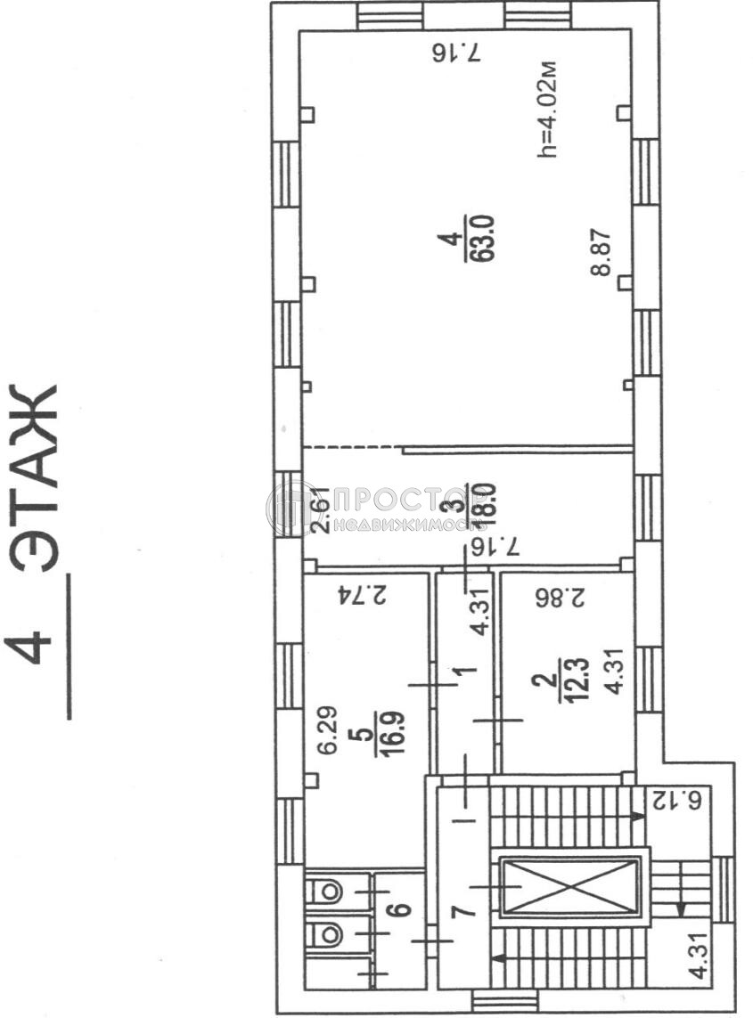
на четвертом 3 кабинета и санузел;
пятый этаж оборудован залом для переговоров, просторной кухней. Кроме этого, 4 кабинета и санузел. Во всем здании большие окна ПВХ, на последнем этаже- мансардные.
Помещение с отделкой, готово к въезду. Несколько этажей заняты надежными арендаторами с договорами на длительный срок. Высокая арендная ставка (30.000 за квадратный метр в год). Всегда есть парковочные места на территории БЦ «Омега Плаза» (прямой договор). Оперативные показы по предварительной договоренности. Свободная продажа. Проведение сделки гарантировано стандартами Гильдии риэлторов Москвы. Уважаемые покупатели и коллеги-риэлторы, звоните- с удовольствием отвечу на ваши вопросы.
Спецпредложения:

Торговое, 19.2 м², продажа
Сокольники
Москва, Восточный административный округ, Сокольническая площадь, 4А

Складское, 4400 м², продажа
Белгородская область, Белгородский район, Белгород, Западный округ, улица Механизаторов, 22

Свободного назначения, 92.1 м², продажа
Верхние Котлы
Москва, Южный административный округ, Севастопольский проспект, 1к5

Земельный участок, м², продажа
Московская область, Наро-Фоминский городской округ, садоводческое некоммерческое товарищество Тонап,

Земельный участок, м², продажа
Владимирская область, Петушинский район, Покров,

Свободного назначения, 1500 м², продажа
Московская область, Зеленоград, Зеленоградский административный округ, 2-й Западный проезд, 2

Бизнес, 194 м², продажа
Мякинино
Московская область, городской округ Красногорск, Красногорск, квартал Коммунальный, Знаменская улица, 5

Бизнес, 20 м², продажа
Фили
Москва, Западный административный округ, Береговой проезд, 5к2

Производственное, 950 м², аренда
Пыхтино
Москва, Новомосковский административный округ, квартал № 30, квартал № 30, 1с1

Свободного назначения, 2.8 м², продажа
Ботанический сад
Москва, Северо-Восточный административный округ, Сельскохозяйственная улица, 35

Бизнес, 545 м², продажа
Отрадное
Москва, Северо-Восточный административный округ, улица Римского-Корсакова, 14

Торговое, 100 м², аренда
Рассказовка
Москва, Новомосковский административный округ, квартал № 30, квартал № 30, 1с1

Свободного назначения, 65 м², продажа
Алексеевская
Москва, Северо-Восточный административный округ, проспект Мира, 112

Свободного назначения, 250 м², продажа
Текстильщики
Москва, Юго-Восточный административный округ, улица Артюхиной, 2

Земельный участок, м², продажа
Московская область, городской округ Серпухов, посёлок Большевик,

Складское, 1165.9 м², продажа
Шоссе Энтузиастов
Москва, Восточный административный округ, шоссе Энтузиастов, 56с10А

Производственное, 7287.8 м², продажа
Московская область, Одинцовский городской округ, посёлок Часцы, Можайское шоссе, 131Бк4

Земельный участок, м², продажа
Московская область, городской округ Черноголовка, деревня Ботово,

Земельный участок, м², продажа
Московская область, городской округ Пушкинский, коттеджный посёлок Тишково Клаб, территория Пестово-Семеновское, территория Пестово-Семеновское, 29

Офисное, 240 м², аренда
Физтех
Московская область, городской округ Мытищи, посёлок Вёшки, торгово-промышленная зона Алтуфьево, Липкинское шоссе, 2-й километр, с7/1

Земельный участок, м², продажа
Московская область, городской округ Клин, дачный посёлок Аквамарин, 67
