Сдается коммерческая недвижимость (свободного назначения), 85 м²
Москва, Западный административный округ, Рублёвское шоссе, 70к5 на карте
Крылатское, 4 мин. на транспорте
1633330
1/24
этаж
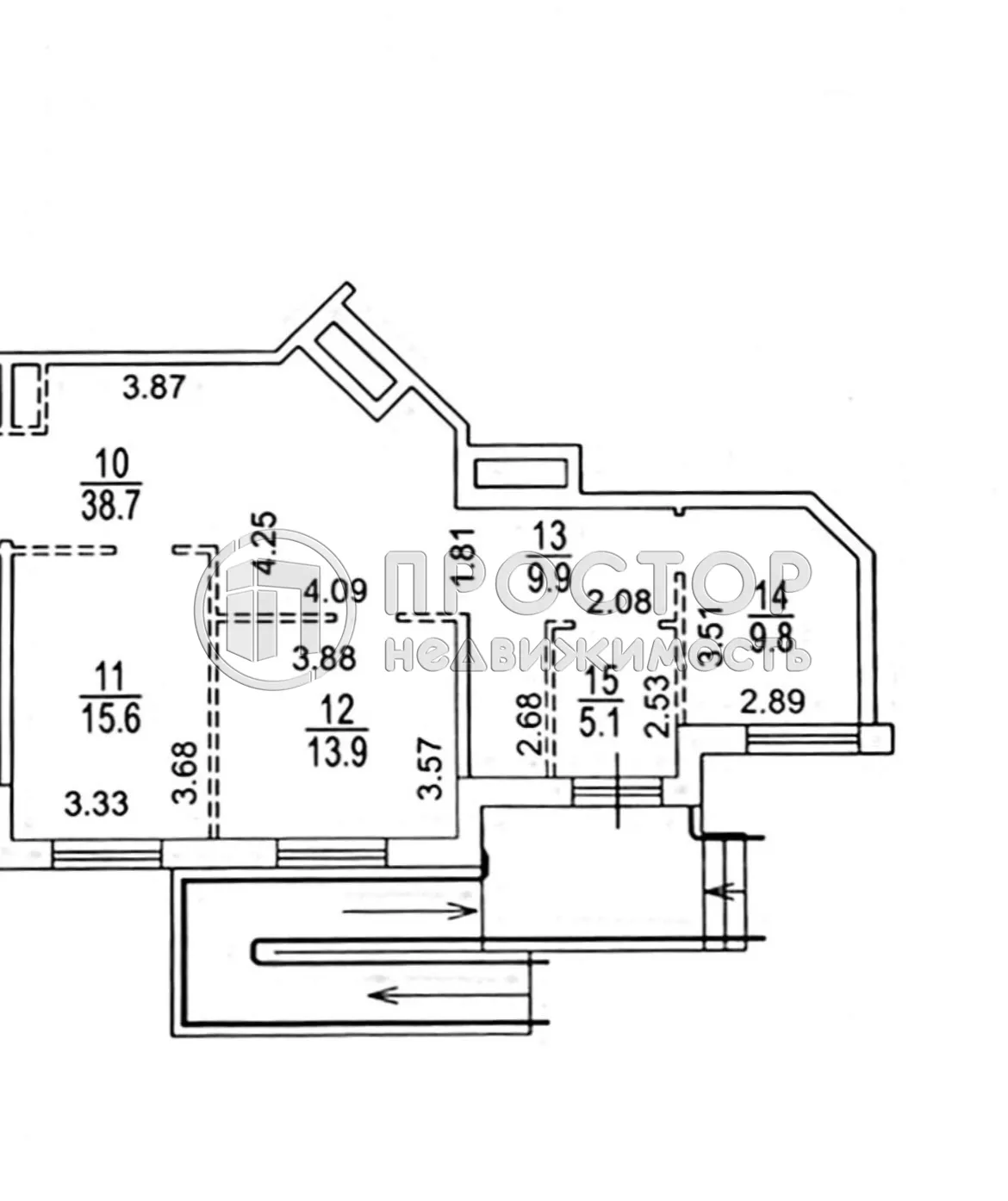
85 м²
площадь
3.5 м
потолок

Буглаева
Алла Юрьевна
Офис «Таганский»
Давайте я перезвоню вам через 2 минуты и отвечу на любые вопросы об этой недвижимости?
Тип сделки
Аренда
Новостройка
Нет
Год постройки
2015
Тип здания
Монолит
Ремонт
Без отделки
Высота потолков, м
3.5 м
Лифт
Нет
Отопление
Центральное
Возможна ипотека
Нет
Дополнительная информация:
Код объекта: 1633330. Сдается в аренду помещение на 1 этаже современного ЖК Крылатский. Численность ЖК более 3000человек. Аренда от собственника. Отличная проходимость. Помещение свободного назначения, свободно, ремонт в бетоне - сделана стяжка. В помещение 3 больших окна. Высота потолков 3.5 м. 1 вход в помещение. Можно сделать ремонт полностью под себя. Возможные варианты использования : пекарня, бар, ресторан, кафе/ресторан, общепит, медицинский центр, сетевой магазин, шоурум, стоматология, зоомагазин, косметология, клиника, свободное назначение.
Спецпредложения:

Земельный участок, м², продажа
Московская область, городской округ Пушкинский, коттеджный посёлок Тишково Клаб, территория Пестово-Семеновское, территория Пестово-Семеновское, 29

Торговое, 19.2 м², продажа
Сокольники
Москва, Восточный административный округ, Сокольническая площадь, 4А

Бизнес, 545 м², продажа
Отрадное
Москва, Северо-Восточный административный округ, улица Римского-Корсакова, 14

Производственное, 7287.8 м², продажа
Московская область, Одинцовский городской округ, посёлок Часцы, Можайское шоссе, 131Бк4

Свободного назначения, 2.8 м², продажа
Ботанический сад
Москва, Северо-Восточный административный округ, Сельскохозяйственная улица, 35

Свободного назначения, 65 м², продажа
Алексеевская
Москва, Северо-Восточный административный округ, проспект Мира, 112

Бизнес, 20 м², продажа
Фили
Москва, Западный административный округ, Береговой проезд, 5к2

Земельный участок, м², продажа
Московская область, городской округ Серпухов, посёлок Большевик,

Торговое, 100 м², аренда
Рассказовка
Москва, Новомосковский административный округ, квартал № 30, квартал № 30, 1с1

Свободного назначения, 1500 м², продажа
Московская область, Зеленоград, Зеленоградский административный округ, 2-й Западный проезд, 2

Бизнес, 194 м², продажа
Мякинино
Московская область, городской округ Красногорск, Красногорск, квартал Коммунальный, Знаменская улица, 5

Складское, 4400 м², продажа
Белгородская область, Белгородский район, Белгород, Западный округ, улица Механизаторов, 22

Производственное, 950 м², аренда
Пыхтино
Москва, Новомосковский административный округ, квартал № 30, квартал № 30, 1с1

Свободного назначения, 92.1 м², продажа
Верхние Котлы
Москва, Южный административный округ, Севастопольский проспект, 1к5

Земельный участок, м², продажа
Московская область, городской округ Клин, дачный посёлок Аквамарин, 67

Офисное, 240 м², аренда
Физтех
Московская область, городской округ Мытищи, посёлок Вёшки, торгово-промышленная зона Алтуфьево, Липкинское шоссе, 2-й километр, с7/1

Земельный участок, м², продажа
Московская область, городской округ Черноголовка, деревня Ботово,

Складское, 1165.9 м², продажа
Шоссе Энтузиастов
Москва, Восточный административный округ, шоссе Энтузиастов, 56с10А

Свободного назначения, 250 м², продажа
Текстильщики
Москва, Юго-Восточный административный округ, улица Артюхиной, 2

Земельный участок, м², продажа
Владимирская область, Петушинский район, Покров,

Земельный участок, м², продажа
Московская область, Наро-Фоминский городской округ, садоводческое некоммерческое товарищество Тонап,
