Продается дом, 76 м²
Объект снят с продажи
ПодробнееМосковская область, Одинцовский городской округ, КП Матрёшки Вилладж, на карте
1760753
3
комнат
1
этажей
76 м²
площадь
45.37 м²
жилая
8 с
участок

Костянец
Богдан Дмитриевич
Офис «Павелецкий»
Давайте я перезвоню вам через 2 минуты и отвечу на любые вопросы об этой недвижимости?
Тип сделки
Продажа
Тип продажи
Свободная
Год постройки
2024
Тип здания
Деревянный
ВРИ
ИЖС
Ремонт
Дизайнерский
Отопление
Электрическое
Водоснабжение
Скважина
Санузел
Совмещенный
Совмещенных санузлов
1
Коммуникации
Водоснабжение, Газ, Канализация, Электричество
Возможна ипотека
Да
Дополнительная информация:
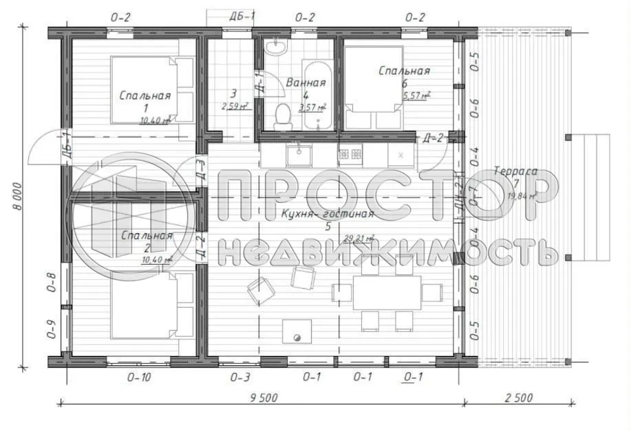
Код объекта: 1760753. Продаётся уютный дом в коттеджном посёлке «Матрёшки Вилладж» в Одинцовском городском округе Московской области. Этот дом, построенный в 2024 году, идеально подходит для тех, кто ищет спокойное место для жизни вдали от городской суеты. Дом каркасный, с металлическими черепичными кровлей и деревянными перекрытиями. Общая площадь — 76 квадратных метров. На участке площадью 8 соток есть баня, а также подведены все необходимые коммуникации: электричество, водоснабжение, газ и канализация. Дом оборудован электрическим отоплением, что обеспечивает комфортное проживание в любое время года. Дизайнерский ремонт позволит вам сразу заселиться и наслаждаться новым домом. Это идеальное место для тех, кто ценит уют и комфорт. Не упустите шанс стать владельцем этого прекрасного дома! Позвоните нам прямо сейчас, чтобы узнать больше и записаться на просмотр. Мы гарантируем безопасную сделку и юридическую поддержку нашим клиентам. Поможем одобрить ипотеку с сниженной ставкой.

Объект снят с продажи
Если вы хотите продать дом, часть дома, таунхаус или дачу в Москве и Московской области или купить дом, часть дома, таунхаус или дачу в Москве и Московской области - обращайтесь к нам!
Мы всегда поможем!
Спецпредложения:

Дом, 150 м²
Аэропорт Внуково
Москва, Троицкий административный округ, КП Наследие, квартал № 415, квартал № 415

Дом, 193.3 м²
Московская область, Дмитровский муниципальный округ, посёлок опытного хозяйства Ермолино, 3

Дом, 110 м²
Московская область, муниципальный округ Истра, КП Алексино, 52

Таунхаус, 250 м²
Московская область, городской округ Химки, СНТ Эфир, 131

Дом, 111.3 м²
Медведково
Московская область, городской округ Мытищи, деревня Болтино, Центральная улица, 25Г

Дом, 700 м²
Московская область, городской округ Чехов, дачное некоммерческое товарищество Белое Озеро, 290

Дом, 470 м²
Физтех
Московская область, городской округ Мытищи, КП Зелёный мыс, Изумрудный проспект, 71

Дом, 47 м²
Московская область, Наро-Фоминский городской округ, СНТ Созидатель, 34

Дом, 120 м²
Московская область, Одинцовский городской округ, деревня Хлюпино, Станционная улица, 26

Дом, 82 м²
Московская область, Раменский муниципальный округ, посёлок Трошково Светлое, улица Горького

Дом, 224 м²
Тверская область, Кимрский муниципальный округ, деревня Ваулино, 4

Дом, 181.7 м²
Кунцевская
Московская область, Одинцовский городской округ, деревня Грязь, 72/1

Дом, 64.5 м²
Московская область, городской округ Домодедово, СНТ Дружба-Вельяминово, 42

Дом, 238 м²
Московская область, городской округ Люберцы, село Сельцо, Центральная улица, 27

Дом, 238 м²
Московская область, муниципальный округ Истра, деревня Ананово, Пенягинская улица, 14

Дом, 97.4 м²
Московская область, Наро-Фоминский городской округ, СНТ Осень, 46

Дом, 68.5 м²
Московская область, городской округ Клин, коттеджный посёлок Клинские рассветы, Никольская улица, 74

Дом, 320 м²
Московская область, муниципальный округ Истра, Истра, микрорайон Полево, Московская улица, 16

Дом, 648.1 м²
Аэропорт Внуково
Москва, Троицкий административный округ, деревня Горчаково, квартал № 280, Солнечная улица

Дом, 165.2 м²
Московская область, городской округ Щёлково, деревня Костюнино, микрорайон Костюнинские дачи, микрорайон Костюнинские дачи

Дом, 122 м²
Щелковская
Московская область, городской округ Щёлково, коттеджный посёлок Борисовка, территория Юпитер, территория Юпитер, 7

Дом, 128.1 м²
Московская область, Волоколамский муниципальный округ, деревня Еднево, 1-я Партизанская улица, 8
