Продается дом, 172 м²
Тип сделки
Продажа
Тип продажи
Свободная
Год постройки
2021
Тип здания
Монолит
ВРИ
ИЖС
Ремонт
White box
Высота потолков, м
3 м
Отопление
Индивидуальный котел
Водоснабжение
Скважина
Санузел
2
Совмещенных санузлов
2
Коммуникации
Водоснабжение, Газ, Канализация, Электричество
Возможна ипотека
Да
Дополнительная информация:
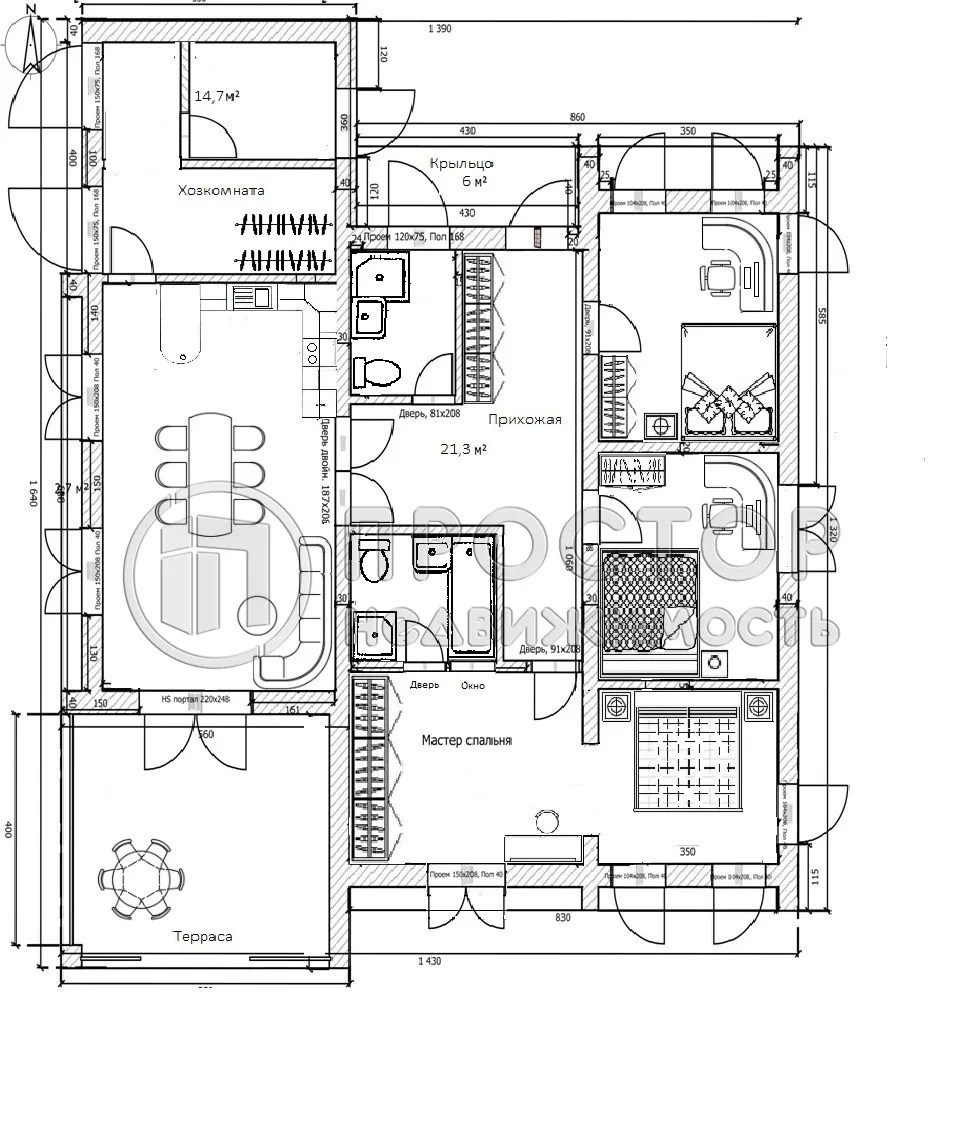
Код объекта: 1324724. Одноэтажный дом с террасой и эксплуатируемой кровлей на участке 8 соток. Современный удобный дом в стиле «хай-тек» с функциональной планировкой: просторная кухня-столовая, две спальни, одна мастер-спальня, две ванных комнаты , гардеробная, котельная. Фундамент -монолитная плита. Тип кровли- плоская. Кровля- наплавляемая кровля "Технониколь". Стены - монолит, утеплитель -100мм, клинкерный кирпич. Перекрытие - ж/б плиты перекрытия. Этажность- 1 этаж Высота потолков: 3 м. Общая площадь, -172 кв.м. Жилая площадь, - 110 кв.м. Количество спален- 3 спальни. Площадь террасы, - 25 кв.м. Площадь эксплуатируемой крыши, - 200 кв.м. Отделка - подчистовая. Участок 8 сот. правильной прямоугольной формы. Категория земель: земли населенных пунктов. Вид разрешенного использования - ИЖС. Электричество (30 кВт) заведено, выполнена разводка. Вода - скважина. Канализация - септик. Газ по границе участка. Хорошая транспортная доступность. 12 км от Москвы. Развитая инфраструктура. Подходит под семейную ипотеку. Помощь в бесплатном одобрении и получении ипотечного кредита. Специальные условия и преференции от ведущих банков-партнеров.

Объект снят с продажи
Если вы хотите продать дом, часть дома, таунхаус или дачу в Москве и Московской области или купить дом, часть дома, таунхаус или дачу в Москве и Московской области - обращайтесь к нам!
Мы всегда поможем!
Спецпредложения:

Дом, 648.1 м²
Аэропорт Внуково
Москва, Троицкий административный округ, деревня Горчаково, квартал № 280, Солнечная улица

Дом, 111.3 м²
Медведково
Московская область, городской округ Мытищи, деревня Болтино, Центральная улица, 25Г

Дом, 122 м²
Щелковская
Московская область, городской округ Щёлково, коттеджный посёлок Борисовка, территория Юпитер, территория Юпитер, 7

Дом, 120 м²
Московская область, Одинцовский городской округ, деревня Хлюпино, Станционная улица, 26

Дом, 224 м²
Тверская область, Кимрский муниципальный округ, деревня Ваулино, 4

Дом, 165.2 м²
Московская область, городской округ Щёлково, деревня Костюнино, микрорайон Костюнинские дачи, микрорайон Костюнинские дачи

Дом, 150 м²
Аэропорт Внуково
Москва, Троицкий административный округ, КП Наследие, квартал № 415, квартал № 415

Дом, 238 м²
Московская область, городской округ Люберцы, село Сельцо, Центральная улица, 27

Дом, 64.5 м²
Московская область, городской округ Домодедово, СНТ Дружба-Вельяминово, 42

Дом, 181.7 м²
Кунцевская
Московская область, Одинцовский городской округ, деревня Грязь, 72/1

Дом, 238 м²
Московская область, муниципальный округ Истра, деревня Ананово, Пенягинская улица, 14

Дом, 82 м²
Московская область, Раменский муниципальный округ, посёлок Трошково Светлое, улица Горького

Таунхаус, 250 м²
Московская область, городской округ Химки, СНТ Эфир, 131

Дом, 97.4 м²
Московская область, Наро-Фоминский городской округ, СНТ Осень, 46

Дом, 700 м²
Московская область, городской округ Чехов, дачное некоммерческое товарищество Белое Озеро, 290

Дом, 193.3 м²
Московская область, Дмитровский муниципальный округ, посёлок опытного хозяйства Ермолино, 3

Дом, 110 м²
Московская область, муниципальный округ Истра, КП Алексино, 52

Дом, 470 м²
Физтех
Московская область, городской округ Мытищи, КП Зелёный мыс, Изумрудный проспект, 71

Дом, 320 м²
Московская область, муниципальный округ Истра, Истра, микрорайон Полево, Московская улица, 16

Дом, 68.5 м²
Московская область, городской округ Клин, коттеджный посёлок Клинские рассветы, Никольская улица, 74

Дом, 47 м²
Московская область, Наро-Фоминский городской округ, СНТ Созидатель, 34

Дом, 128.1 м²
Московская область, Волоколамский муниципальный округ, деревня Еднево, 1-я Партизанская улица, 8
